
Hoy os presentamos el interiorismo y un avance del proyecto de paisajismo que A-cero ha llevado a cabo en su vivienda A-cero Tech, situada en Salamanca, en una pequeña población en la campiña salamantina. Este es de los pocos modelos que se han realizado a petición del cliente en acabado de acero corten. El modelo de la vivienda es la B2, que cuenta con una sola planta en una superficie de 107m2 en el que se incluyen los porches.
SITUACIÓN

EMPLAZAMIENTO

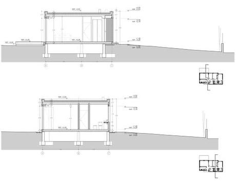
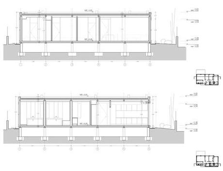
SECCIONES


ALZADOS


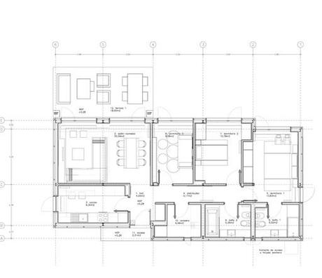
PLANTA BAJA
La vivienda se conforma mediante un hall de 5m2, con un salón comedor de 21m2, cocina de 10m2, y un distribuidor que conduce a la zona más privada de la vivienda, los dormitorios. En este único nivel de planta baja, se sitúan 3 dormitorios y 2 baños. El principal en suite se desarrolla en 20m2, y los 2 restantes con baño compartido de 6m2 comprenden superficies de 11m2 y 10m2.
Lindando a la cocina se diseña la zona de lavadero – tendedero de 5m2, así de esta manera queda esta zona independizada del resto de la vivienda, dando prioridad a las zonas mas comunes y de uso más público.

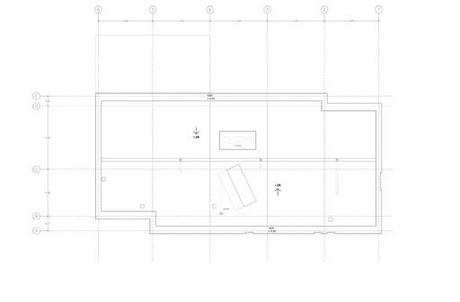
PLANTA CUBIERTA
Hablamos de una cubierta no practicable. En el exterior encontramos un porche de acceso a la vivienda y una amplia terraza de 18m2.

EN FÁBRICA ….

Este es el primer proceso en la viviendas A-cero Tech, el montaje de la estructura y ensamblaje de los distintos elementos.


HORMIGONADO
La parcela del cliente se prepara realizando el hormigonado para la posterior colocación de los módulos de la vivienda.



TRANSPORTE E INSTALACIÓN
El transporte de los módulos se realiza mediante camiones de grandes dimensiones, y para su colocación se utilizan grúas.



VIVIENDA TERMINADA-EXTERIOR




PROPUESTA DE PAISAJISMO

El material elegido, acero corten, hace que se integre perfectamente en el entorno, ya que la vivienda se encuentra situada en el campo.
INTERIORISMO
Con la vivienda ya terminada os mostramos ahora cómo se han planteado los interiores.













Para más info sobre las viviendas A-cero Tech, visita www.a-cerotech.com
