
Os presentamos una vivienda diseñada por A-cero, que os presentamos hace unos meses, y que hoy ampliamos con mayor número de imágenes y el proceso constructivo al completo. Se trata de un conjunto de volúmenes y planos superpuestos en una sobria composición que difumina los límites entre arte y arquitectura. Como podéis ver en las siguientes imágenes, la construcción final (fotografías) es el reflejo de los renders previos realizados.





Voladizos, bloques y láminas de corte minimalista, en la línea estética de A-cero, definen el diseño este proyecto residencial de referencias esculturales.



El marmol travertino se impone en el exterior de la vivienda, cuya estructura consta de muros y pilares de hormigón armado sobre los que se apoyan los forjados y vigas que constituyen los diferentes pórticos de la casa.
PROCESO CONSTRUCTIVO



























Se trata de una edificación situada en una zona residencial de Las Rozas, uno de los municipios de las afueras de Madrid con mayor renta per capita.
La construcción se extiende sobre una parcela de 1368m2 con una ligera pendiente que A-cero ha aprovechado para desarrollar el inmueble en tres niveles adaptados a la perfección al desnivel del terreno.

En total el inmueble consta de 762,47m2 de superficie construida distribuida entre el sótano, la planta baja y el primer nivel.
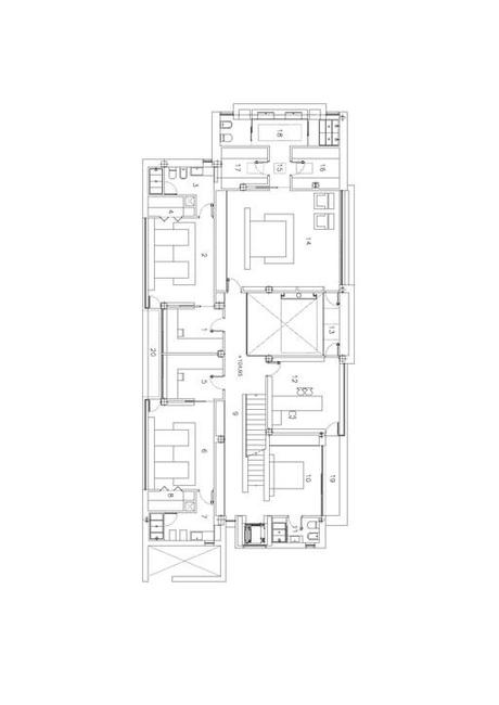
PRIMERA PLANTA

PLANTA BAJA

SÓTANO

La vivienda cuenta con dos piscinas y dos jacuzzi de similares dimensiones para exterior e interior.




Los interiores destacan por su distribución diáfana. Zonas abiertas que le dan a la vivienda un punto cómodo y habitable en todas sus plantas (sótano, baja y primera planta).
El acceso peatonal tiene lugar por la planta baja donde se localizan las estancias más sociales (sala de estar, salón y comedor) a continuación unas de otras en el lado derecho de la casa. En el otro ala se halla un aseo de cortesía, un patio interior, la cocina-office, una despensa y un cuarto de limpieza.
PLANTA BAJA







Al fondo se encuentra el porche principal que comunica con el comedor.
Unas escaleras interiores y un ascensor comunican este nivel con el sótano y la primera planta.

El primer piso consta de 273,46m2 y alberga las siguientes habitaciones: dos dormitorios para los hijos con sus respectivas zonas de estar, vestidores y cuartos de baño; un dormitorio de invitados con cuarto de baño; el dormitorio principal con dos vestidores y cuarto de baño; un estudio que comunica con una pasarela-biblioteca (a la que también se accede desde el dormitorio principal) y dos pequeñas terrazas.
PRIMERA PLANTA







En el sótano se encuentra el cuarto de instalaciones, trastero, cuarto de aperos para el jardín y bicicletas, piscina interior, gimnasio, sauna, sala de masajes, sala de cine y bodega. Excepto el trastero, el garaje y la zona de instalaciones (con suelos de hormigón pulido), el resto de la planta cuenta con solados de tarima de madera de ipé.
SÓTANO



Prácticamente toda la vivienda consta de suelos de mármol apomazado que sólo en ciertas zonas, como el garaje, la piscina interior o la cocina, es sustituido por madera ipé, porcelanato u hormigón pulido.
El mármol color biege se une al blanco de todas las paredes y techos aportando una gran claridad y luminosidad a la vivienda en la línea de A-cero. Además, esta combinación cromática crea una sensación acogedora y de amplitud muy adecuada en esta residencia cuyas dimensiones no son excepcionalmente grandes.
Destaca la chimenea como un elemento esencial en la sala de estar y las diferentes piezas de mobiliario en color oscuro que contrastan con los colores claros dominantes.

Diseño, funcionalidad y calidad son los tres conceptos que han marcado la hoja de ruta de esta vivienda donde elegancia, sobriedad y sencillez se imponen en la línea de la arquitectura A-cero.
PAISAJISMO







