La obra de Richard Meier trasciende a finales de la década del 60 del siglo pasado, catalogada en el grupo surgido de la exposición “Five Architects” organizada en 1967 y el posterior libro publicado en 1972. El trabajo de los Five estaba ordenado en la relectura del lenguaje racionalista, orientando casi toda la atención en las cuestiones formales. El denominador común de estos arquitectos era la devoción por obras de la modernidad como las casas de Rietveld, los trabajos de Giuseppe Terragni y fundamentalmente de las Villas puristas de Le Corbusier, en un momento donde germinaban los cuestionamientos a los principios fundamentales de la arquitectura moderna.
La obra de Meier se focaliza en la indagación de las variantes que surgen del contraste entre planos horizontales y verticales, establecidos sobre una retícula estructural que facilita la dialéctica ente muros y transparencias. La casa Rachofsky, construida en 1996, representa una declamación de esa búsqueda.

El diseño explora con diferentes grafías las articulaciones de la vida cotidiana y la relación de la arquitectura con el paisaje. Este ejercicio se escuda en un programa que guarda cierta similitud con los requerimientos que enfrento Le Corbusier en la casa La Roche, una positiva flexibilidad para la exploración de nuevas relaciones entre el arte y la vida doméstica.
La casa se gesta como una convención de geometría simple compuesta por entidades opacas y transparentes. La espacialidad resulta invadida por las cualidades de la luz y el dominio visual limitado o extendido, de acuerdo a las necesidades del juego arquitectónico.
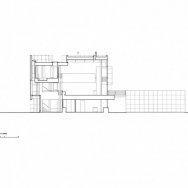
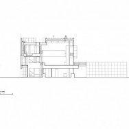
El cuerpo de la casa se instala en el centro de un terreno parquizado. El volumen se estructura en dos ejes perpendiculares. El ingreso desde el exterior o desde el jardín atraviesa el volumen estableciendo uno de los ejes. En sentido opuesto, tres hileras de columnas definen los espacios de circulación y los espacios habitables






Tres capas componen el juego sincrónico de la elevación que se percibe desde el exterior. La primera capa la construye el muro que flota sobre el frente del volumen. Por detrás, la trama de pilotis se eleva desde el suelo hasta esconderse detrás de la pantalla. La última capa la establece el plano ciego que asoma detrás de los pilotis.
Debajo del plano flotante se oculta el acceso formal a la vivienda. En la cara opuesta, la transparencia funde el límite entre interior y exterior, haciendo visible el parque desde cualquier ángulo de la casa.
La planta baja aloja los servicios y actúa como basamento alojando los servicios. El elemento articulador de la casa es la doble altura sobre la sala de estar del primer piso. Una serie de cajas flotantes y balcones convergen envolviendo el espacio, que resulta absorbente a una asociación con la naturaleza.









Las circulaciones verticales se ubican en los extremos opuestos del eje de circulación horizontal, detrás de la pantalla de fachada. Sobre uno de los lados, una escalera helicoidal permite el acceso directo al dormitorio principal. En el otro, una escalera de dos tramos conduce a las áreas privadas.
El descanso en voladizo que asoma en un extremo de la pantalla delata la transición entre el suelo y el estar. El juego de telones contiene estructuras vidriadas como cierre horizontal de los planos verticales, propiciando una iluminación de carácter intimista.
En el interior, otro sutil juego de pantallas se esparce sobre el terreno en sentido perpendicular a la casa. Un muro blanco tramado ubicado sobre uno de los lados del jardín oculta la escalera que vincula el terreno con el primer piso. En el lado opuesto, otro plano más pequeño de color gris y textura pétrea divide en dos el natatorio. El juego de entidades se consuma en el cubo blanco ubicado al final del jardín, donde se alojan los equipos mecánicos.









Los muros revestidos en panelería de aluminio blanco modulada en una trama neutra consolida la grafía racionalista. Los montantes de carpintería no coinciden con esa trama atendiendo la disposición de columnas y muros, aspirando a establecer la diferencia entre la escenografía y el espacio habitable.
La casa explora de manera radical la relación entre urbanidad y privacidad. El contraste entre pantallas y transparencias sujetadas de una semántica purista, discurre una intensa indagación sobre la introversión de la vida doméstica. El progreso de la ordenación interior afirma un juego espacial que se apoya en el plano de la fachada para extenderse con interés hacia el lado opuesto, donde se diluye hasta fundirse en la naturaleza.
Marcelo Gardinetti, septiembre de 2014©
Fotografías: Interiores: ©Jules Gianakos. Exteriores: ©Douglas Newby
Artículo relacionado: Casa Hanselmann
TECNNE | Arquitectura + contextos






Escrito en: Arquitectura
Autor: Marcelo Gardinetti
Fotografía: ©Douglas Newby
Cite: “Marcelo Gardinetti, Pantallas y transparencias; Tecnne”
Enlace corto: http://tecnne.com/?p=15193
Tags: arquitectura, Casa Rachofsky, Douglas Newby, eisenmann, five, five architects, gwatmey, hejduk, Jules Gianakos, Le Corbusier, Marcelo Gardinetti, michael graves, posmodernismo, purismo, racionalismo, Richard Meier
Los artículos de TECNNE se encuentran bajo la licencia Creative Comons | The articles of TECNNE are found under license Creative Comons
Deja un comentario
Clic para cancelar respuesta.Nombre (requerido)
Correo electrónico (no será publicado) (requerido)
Web
