Renovado por completo en 2015, este piso barcelonés mezcla el estilo mediterráneo y el nórdico de forma armónica y acogedora y disfruta de una gran terraza, para aprovechar las suaves y cálidas temperaturas de la capital catalana.

No es ningún secreto que el estilo arquitectónico del litoral español mediterráneo y el estilo nórdico encajan a la perfección y una fusión de estos, resulta en ambientes increíblemente luminosos y elegantes.
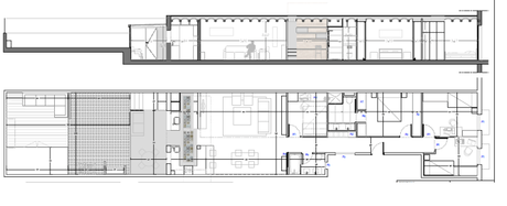
Como podéis ver, en la renovación no se eliminaron todos los elementos originales, las vigas del techo por ejemplo, se mantuvieron en el salón y dormitorios, lo mismo que la pared de ladrillo visto original, protagonista de alguna de las paredes de todas las habitaciones, lo cual se agradece, le da personalidad a la vivienda.
Resulta peculiar la distribución de la cocina, dos Ces enfrentadas y aunque en un principio suena algo extraño lo cierto es que seguramente por cuestiones de fontanería,etc. la reforma era complicada hacerla de otra manera y se mantuvo así y a nosotros nos parece que funciona bastante bien ¿no?
Sin duda la joya de la casa es la gran terraza de casi 50 metros cuadrados, un lujo en una vivienda de este tipo en el centro de Barcelona, seguro que os encanta. ¡Feliz lunes!



























Vía: Bjurfors
