
El estudio de arquitectura de A-cero, dirigido por Joaquín Torres, presenta hoy el proceso constructivo de una de sus viviendas ubicada en una lujosa urbanización de Madrid. Se trata de una vivienda unifamiliar aislada que linda por todos sus lados con terreno de la propia parcela sobre la cual se edifica. Su fachada principal recae a la vía privada de circulación y está rodeada de jardín propio por todos sus lados, quedando la parte más extensa de él a continuación de la fachada posterior, lugar en el que se sitúa la piscina exterior.
ALZADOS

SECCIONES

PLANTA SÓTANO
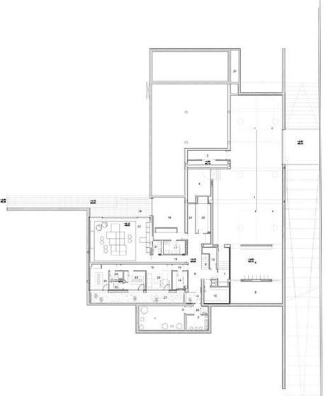
La superficie de esta vivienda se divide en varios niveles, planta sótano, con una superficie construida de 634,89m2, a la que se accede desde la vía privada de circulación mediante rampa y desde la planta baja mediante escalera; se destina a garaje, cuarto de instalaciones, trasteros, servicios, vestuarios de servicio, sala de juegos, gimnasio y aseos, vestuarios y bodega.

PLANTA BAJA
Con una superficie construida de 684,17m2. Tiene un acceso principal en la fachada principal y otro de servicio situada en la fachada lateral la casa. Se destina a zona vividera, compuesta por acceso principal, aseo de cortesía y gabanero, escalera de bajada a sótano, sala de estar, salón, comedor, cocina y ofice, despacho, dormitorio principal con zona de estar y baño completo con baño turco, y zona de dormitorios secundarios situados en la parte suroeste, compuesta por tres dormitorios con sus respectivos baños completos. En el exterior una piscina con una zona de estar bajo una pérgola, completan la distribución de la vivienda.

PLANTA CUBIERTA

PROCESO CONSTRUCTIVO




















PROYECTO FINALIZADO

La superficie construida del total de la vivienda y piscina es de 1.319,06m2.





La fachada realizada con forjados unidireccionales sobre pilares de hormigón armado. En sótano, muro perimetral de contención de tierras de hormigón armado.



Porches solados con granito. Rampa de garaje solada en adoquín de granito portugués. Muros de contención de hormigón visto.














Todas las paredes de los salones, los dormitorios y cocina están acabadas en pintura plástica lisa; los baños están acabados con estuco; los baños de servicio con gres porcelánico de gran formato hasta el techo. Los techos están realizados en placa de cartón-yeso acabados en pintura plástica lisa. Las zonas nobles de la vivienda están soladas con tarima, y las de servicio con gres porcelánico.












INTERIORES












Se ha apostado por la utilización de la luz perimetral creando un ambiente cálido resaltando las obras de arte de los muros. Contraste de claroscuros en sofá y butacas auxiliares, así como la mesa de centro.



Cuidado interiorismo, con grandes espacios y meditada distribución, amplios ventanales favoreciendo la entrada de luz a las diferentes estancias.
En la cocina, se ha querido romper los tonos más claros aportando más brillo mediante los colores de las lámparas.




