
Hoy el estudio de arquitectura dirigido por Joaquin Torres & Rafael Llamazares, presenta una nueva vivienda unifamiliar, en la que ya se han comenzado las obras. Se trata de una construcción de 3 niveles (sótano +2), distribuida en 1.600m2 útiles.
EMPLAZAMIENTO

SECCIONES



ALZADOS


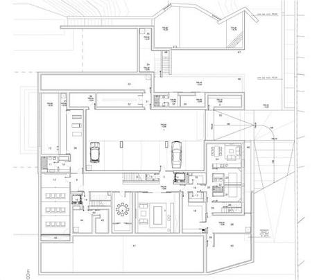
PLANTA SÓTANO
Este nivel es el más amplio de la vivienda en cuanto a superficies. Consta de un total de 1.056m2 útiles. Se diseña un garaje de 192m2 que dará cabida a 6 vehículos, cuarto de aperos de jardín de 10m2, vestíbulo de 40m2, ascensor, aseo, escalera principal, sala de juegos de 50m2, bodega de 22m2, distribuidor, vestuario, cuarto de baño, piscina interior de 40m2, cine de 46m2, escalera y ascensor privado, cuarto de lavado y planchado de 21m2, otro trastero, y la zona de servicio en la que se encuentra: 2 dormitorios de servicio de 10m2 cada uno con un baño de 5m2 común y una sala de estar de 22m2.
Continuando con el resto de las estancias de la vivienda, se diseña un cuarto de limpieza, escalera de servicio, cuarto de instalaciones, almacén, vestuario, distribuidor, cuarto de trofeos y caza de 18m2, cuarto de tiro de 45m2, gimnasio de 28m2, cuarto de calderas, porche de la piscina exterior de 42m2, terraza de la piscina exterior de 51m2, y acceso a garaje de 30m2.

PLANTA BAJA
Este nivel de la vivienda de 350m2 está destinado a ser la zona de recibir y al igual donde el cliente ha decidido ubicar estancias más privadas como la zona de invitados y su propio dormitorio principal. En la zona de invitados se encuentra el dormitorio de invitados en suite de 30m2, y como zona de dormitorio principal, la habitación en suite con 2 baños, vestidor y sauna en un total de 55m2. El resto de las estancias son el ropero, aseo de cortesía, ascensor, office, despensa, cámara frigorífica, 2 aseos de cortesía, cocina de 22m2, comedor de 27m2, salón de 66m2, despacho de 20m2, distribuidor y escaleras/ascensor. Exteriormente se diseñan 3 porches, el del salón – comedor de 90m2, uno en el dormitorio principal de 40m2, pérgola para el jardín de 52m2, porche de acceso principal de 11m2, porche area de servicio de 45m2, y el porche del dormitorio de invitados.

PLANTA ALTA
En este nivel se encuentran los dormitorios secundarios. Se distribuyen en planta un total de 4, de los cuales 2 de ellos son en suite, constan de office, baño, y sala de estar, en 48m2 cada uno con una terraza compartida de 12m2. Los 2 restantes, en suite de 23m2 cada uno, con una sala de estar común de 12m2.

PLANTA CUBIERTA







Exteriormente se han utilizado materiales como el mármol travertino y el Verzalit.


PROCESO CONSTRUCTIVO











Estructura de acero que en un futuro irá recubierta de aluminio.







