
El estudio de arquitectura de A-cero, presenta el proceso creativo desde el boceto hasta la concepción final de una cocina de diseño. Esta está ubicada en la zona noroeste de la capital y tiene una superficie total de 100m2.



ALZADOS


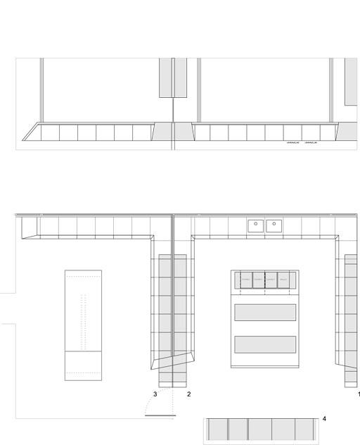
ISLA CENTRAL ALZADOS Y SECCIONES

PLANTA

RENDERS
Con inmejorables vistas, se ha aprovechado este espacio de grandes ventanales para ubicar una de las zonas más comunes de la vivienda. La cocina se puede dividir en 2 areas perfectamente diferenciadas: una zona central en la que se encuentra la isla principal en la que se diseña sobre la encimera de Corian la zona de placa vitrocerámica de inducción acompañado de una campaña exenta. En este mueble de diseño se han situado 4 cajones de forma trapezoidal que albergará el espacio suficiente para el menaje de cocina.




FINAL

Como se ha citado anteriormente y como se observa en estas imágenes, la cocina se divide en 2 zonas diferenciadas. Una de trabajo y otra de comedor. Todas ellas formadas por muebles de líneas rectas que por su diseño pasa desapercibido ya que cuenta el mobiliario con uñeros en vez de tiradores.

Luz indirecta por leds, que se acentúa en la zona de comedor.


Se coloca otra encimera en uno de los laterales con otro fregadero que da servicio al principal a modo de apoyo con el mueble retroiluminado por leds.

La campana exenta está fabricada con distintos materiales. Una de sus caras es de espejo y la otra de acero Inox.

Tras la campana se alberga la zona de despensa, frigorífico, horno y microondas dispuesto en columna e integrado en el mueble.

Todo un lujo para hacer de esta zona de “trabajo” una zona de disfrute.
