
Recordamos el proceso creativo de este proyecto de centro comercial ubicado en África central. El centro comercial de 12.300m2 se distribuye en dos niveles que se adaptan al desnivel de la parcela. Os queremos mostrar el desarrollo del diseño desde el inicio del mismo, paso a paso.
ESTADO PREVIO A DISEÑO A-CERO


CROQUIS y REFERENCIAS

El diseño se inspira en tejidos y cerámicas de origen africano. Se intenta dar un toque innovador y moderno arquitectonicamente, pero conservando la esencia de la zona.



ALZADOS Y SECCIÓN

PLANTAS

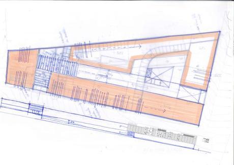
PLANTA SÓTANO
En este nivel de 6.700m2 encontramos diferentes zonas de acceso e instalaciones, el aparcamiento, el núcleo de comunicaciones de servicio, banco y supermercado.

PLANTA BAJA
En la planta alta de 5.600m2 localizamos la cafetería, restaurante, un centro de belleza y diferentes locales comerciales. Todo este espacio se distribuye a través de un corredor y plaza central que comunica los dos niveles.

PLANTA CUBIERTA

VISTA AÉREA

VISTA EXTERIOR


A continuación veis algunas imágenes del proceso creativo, modificando sobre los diseños y con las referencias siempre presentes.


El diseño de la fachada exterior responde a la conceptualización de motivos tradicionales locales. Los acabados de los muros exteriores son en hormigón prefabricado tintado y pórticos de madera artificial, para resistir la climatología. Nos encontramos diferentes puntos de luz esféricos en el exterior que rompen con la continuidad lineal de la fachada.



VISTA INTERIOR


La edificación se adapta al 100×100 de la parcela gracias a un diseño de planta trapezoidal. La cubierta en la parte central es acristalada para permitir la entrada de luz natural, al mismo tiempo que se plantea un sistema de pórticos para el control solar.

La fachada se introduce en el interior a través del patio central. El sistema de cerchas o pórticos que regulan la entrada del sol tiene también una función decorativa. Además, se incorporan a estas las luminarias en formas de líneas Led.

En el interior, la plaza central comunica los dos niveles donde encontramos un conjunto escultórico colgante realizado en paneles de madera artificial, que sirve al mismo tiempo como puntos de luz.


RESUMEN DEL PROCESO CREATIVO

