
El estudio de arquitectura A-cero presenta un nuevo proyecto basado en la edificación de dos viviendas gemelas “espejo” ubicadas en un exclusiva zona de Madrid, y como propietarios de las mismas dos hermanos. Se sitúan en una parcela común de 7.000m2 y cada una de las viviendas consta de 2 niveles, planta baja y alta, con una superficie total de 950 m2. Actualmente el estudio está diseñando el proyecto paisajístico que en un tiempo os mostraremos.
RENDERS EXTERIORES VIVIENDAS GEMELAS


VIVIENDA 1
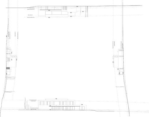
ALZADOS

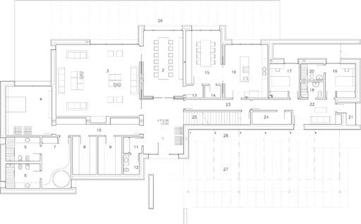
PLANTA BAJA
Los clientes han destinado esta planta de acceso al área más pública de la vivienda, incluyendo en este nivel su dormitorio. En ella encontramos a la entrada un aseo de cortesía de 4m2, 2 vestidores de 6m2 cada uno, amplio salón de 75m2, comedor de 35m2, cocina con office que suma un total de 55m2, y en el extremo de la vivienda la zona de servicio en la que encontramos un dormitorio de 16m2, baño de 6m2, otro secundario en suite de 36m2 y una sala de estar para el servicio de 12m2. El dormitorio principal del cliente en suite cuenta con 2 baños y dos vestidores en un total de 40m2.

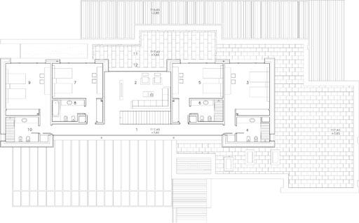
PLANTA ALTA
Este es el nivel más privado de la vivienda en la que se encuentran el resto de los dormitorios. Cuenta con un total de 4 dormitorios en suite de entre 30 y 27m2. Se diseña una sala de estar de 35m2 como zona común de las diferentes estancias de esta planta.

PLANTA CUBIERTA





VISTA DE AMBOS GARAJES

El porche cuenta con una zona apergolada que da servicio al garaje de la vivienda en la planta de acceso.
VIVIENDA FACHADA FRONTAL



FACHADA LATERAL

FACHADA TRASERA


Los materiales utilizados para la fachada son el marmol travertino con vidrio transparente.
SALÓN – COMEDOR

COCINA

VIVIENDA 2
ALZADOS

PLANTA BAJA
Los clientes han destinado esta planta de acceso al área más pública de la vivienda, incluyendo en este nivel su dormitorio. En ella encontramos a la entrada un aseo de cortesía de 4m2, 2 vestidores de 6m2 cada uno, amplio salón de 75m2, comedor de 35m2, cocina con office que suma un total de 55m2, y en el extremo de la vivienda la zona de servicio en la que encontramos un dormitorio de 16m2, baño de 6m2, otro secundario en suite de 36m2 y una sala de estar para el servicio de 12m2.. El dormitorio principal del cliente en suite cuenta con 2 baños y dos vestidores en un total de 40m2.

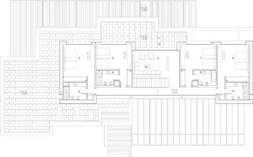
PLANTA ALTA
Este es el nivel más privado de la vivienda en la que se encuentran el resto de los dormitorios de la vivienda. Cuenta con un total de 4 en suite de entre 30 y 27m2. Se diseña una sala de estar de 35m2 como zona común de las diferentes estancias de esta planta.

PLANTA CUBIERTA

RENDERS





FACHADA FRONTAL


FACHADA TRASERA

SALÓN


SALA


DORMITORIO PRINCIPAL + VESTIDOR


