
Hoy recuperamos un antiguo proyecto que desafortunadamente se quedó sobre el papel, pero que queremos compartir con vosotros. Se trata de dos versiones diferentes diseñadas por A-cero para una vivienda unifamiliar en una exclusiva urbanización al norte de Madrid. En esta ocasión se optó por distribuir la vivienda de 1.094,89 m2 en dos niveles para optimizar la estética y funcionalidad del proyecto, de acuerdo a las necesidades del cliente y las características del terreno.
CROQUIS

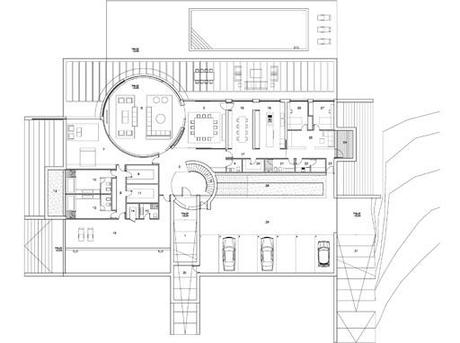
PLANTA BAJA
Este nivel cuenta con una superficie total construida de 992 m2 fue diseñado para distribuirse interiormente en: una zona de entrada con una rampa de acceso peatonal, vestíbulo de 41,87 m2 junto a unas escaleras de acceso al nivel superior de 5,30 m2; zonas de uso común como el salón de 84,95 m2, el comedor de 34,31 m2, un aseo de cortesía de 3,39 m2, una cocina de 23,28 m2 con despensa de 4,76 m2; zonas de servicio donde encontramos un distribuidor de 16,92 m2, ofice de 20,59 m2, cuarto de baño de 6,63 m2, un lavadero -tendedero 6,54 m2, acceso de servicio, un patio de 7,61 m2, sala de estar de 14,79 m2 y dos dormitorios de 11 m2 aprox; zona de uso privado compuesta por dos dormitorios principales, uno de 44,74 m2 con distribuidor, dos cuartos de baño de 18,92 m2, dos vestidores de 10 m2, y un patio de 12,10 m2; una zona de recreo en la que encontraríamos una sauna de 3,12 m2, cuarto de baño-vestuario de 4,75 m2 y una piscina de 100,55 m2.
Por una rampa de acceso rápido llegamos al garaje de 171,77 m2 (con capacidad para 7 vehículos), junto a un patio de 42 m2 y un cuarto de instalaciones de 13,94 m2.

PLANTA ALTA
En este nivel de 323,33 m2 encontraríamos las estancias más privadas de la vivienda. Un vestíbulo de 18,27 m2 nos conducirían hacia un despacho de 49,68m2 y cuatro habitaciones de idénticas dimensiones (25,66 m2) que cuentan con baño propio de 8,40 m2 (salvo una de ellas, cuyo cuarto de baño tiene una superficie de 10,05 m2.

EXTERIORES
Este primer diseño se distinguió especialmente por la inclusión de dos torres circulares cuyas formas onduladas contrastan con las líneas rectas que dominan en el resto de la edificación ,en un singular juego que harían única esta residencia.


Desde la fachada trasera se apreciaría el segundo volumen radial de mayor tamaño y semi abierto por un gran panel de cristal volcado al porche.

Una de las piezas circulares se abriría en su parte central para dar paso a la entrada principal de la edificación mediante una puerta de generosas dimensiones.



El mármol travertino fue la opción escogida para revestir casi por completo este proyecto, que sólo serría sustituido por basalto en puntuales piezas, como la pérgola posterior o los dos muros de la fachada frontal.


Vota el Blog A-cero para los premios Bitácoras 2012

