
Hoy continuamos con el post de ayer para mostraros la segunda propuesta diseñada por A-cero de una vivienda unifamiliar de 1.300 m2, situada de en una exclusiva urbanización al norte de Madrid.
Desafortunadamente estas dos versiones no se llevaron a cabo, pero igualmente queremos compartirlas con vosotros.
CROQUIS





MODELO 3D

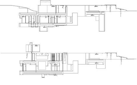
SECCIONES



ALZADOS

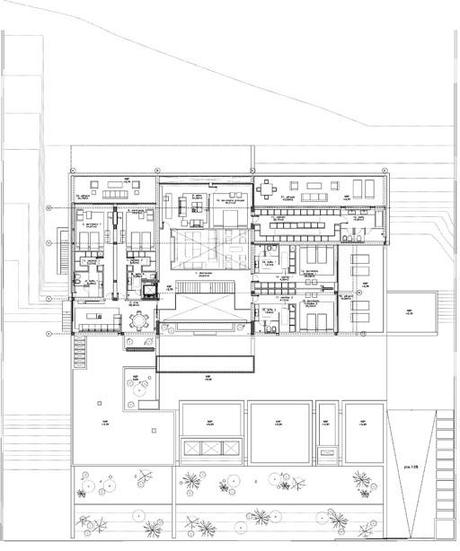
PLANTA BAJA
Este nivel cuenta con una superficie total construida de 770,13 m2 donde se distribuyen las estancias destinadas al uso público. La entrada consta de un distribuidor de 35,78 m2 junto a un ropero, aseo de cortesía de 2,87 m2, escaleras y ascensor. Encontramos más adelante zonas comunes como el salón de 63,75 m2, comedor de 30,71 m2, cuarto para la vajilla de 3 m2, un distribuidor de 6,53 m2, una cocina-office de 38,51 m2 junto a una bodega de 6,44 m2, un cuarto de limpieza de 2,31 m2 y un cuarto de plancha de 12,48 m2. Un distribuidor de 2,30 m2 nos conduce hasta un cuarto de lavandería de 13,12 m2 y una despensa de 5m2. También encontramos una sala de masajes de 8,90 m2, dos cuartos de baño (de 3,19 y 2,58 m2), un cuarto lencero de 8,81 m2, txoco de 20,07 m2 y trastero de 7,25 m2. El nivel cuenta también con un gimnasio de 25,81 m2, vestuario de 18,38 m2, baño turco de 5,72 m2, piscina de 81,64 m2 y cuarto para la deshumectadora de la piscina de 19,30 m2.
El acceso a la vivienda esta cubierto por una pérgola de 18,77 m2. Encontramos un porche salón-comedor de 61,26 m2, un porche office de 20,27 m2, un porche servicio de 5 m2, y un porche garaje de 149,39 m2 con capacidad para 10 vehículos.

PLANTA ALTA
En este nivel de 374,87 m2 encontraríamos las estancias más privadas de la vivienda, divididas por un distribuidor de 26,93 m2, además de una sala de cine de 28,36 m2. El dormitorio principal de 20,01 m2 contaría con un cuarto de baño de 14,91 m2, vestidor de 30,15 m2 y una sala de estar de 24,09 m2. Cuenta también con dos dormitorios de idénticas dimensiones: dormitorios de 24,67 m2 con vestidor de 5,62 m2 y baño de 5,98 m2 cada uno. Se disponen dos dormitorios para invitados de 26,30 m2 con vestidor y cuarto de baño de 7,5 m2 aprox. Este nivel superior contaría con tres pérgolas, una para los cuartos de invitados de 20 m2, una para el dormitorio principal de 44 m2 y una última pérgola compartida por los otros dos dormitorios, de 24,78 m2.

EXTERIORES
Al contrario que en el planteamiento anterior, esta propuesta carece de volúmenes circulares. En su lugar, se apostó una arquitectura de líneas limpias que se prolongan en perfecta armonía definiendo la estructura de la casa junto a una serie de piezas cúbicas.


En la fachada posterior destacan las dos franjas horizontales y paralelas que delimitan los niveles de la casa (bajo y primera planta) con la belleza inherente a la sencillez del diseño.





Los laterales de la construcción siguen el mismo lenguaje de volúmenes y líneas intercaladas en un dinámico juego arquitectónico revestido por piedra caliza blanca combinada con paneles de aluminio negro.





IMAGEN NOCTURNA

INTERIOR

Vota el Blog A-cero para los premios Bitácoras 2012

