
Hoy desde el estudio de arquitectura de A-cero, os recordamos este proyecto sin ánimo de lucro muy especial. Se trata del diseño de un centro de recuperación de galgos en la provincia de Toledo, con una superficie cercana a los 920m2 últiles.
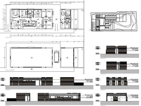
PARCELA Y ALZADOS

PLANTAS Y ALZADOS EDIFICIO ADMINISTRACIÓN + VIVIENDA GUARDÉS
El edificio de administración cuenta con una superficie de 185m2, donde encontramos: una recepción, oficina, dos aseos, un almacén de mantas, almacén de alimentos, lavandería, dos vestuarios, una peluquería canina, una zona hospitalaria, consulta y un quirófano. La vivienda del guardés, de 59,75m2, cuenta con: hall, un espacio salón-cocina-comedor, cuarto de baño y dormitorio.

PLANTAS, SECCIONES Y ALZADOS DE EDIFICIO NAVE DE BOX DIARIOS
La nave de box diarios cuenta con una superficie total construida de 330m2, donde encontramos 28 boxes de 6,47m2 y un distribuidor. Estos boxes cuentan con un patio exterior de 9,27m2, más 8 patios comunes (ente 40 y 55m2).

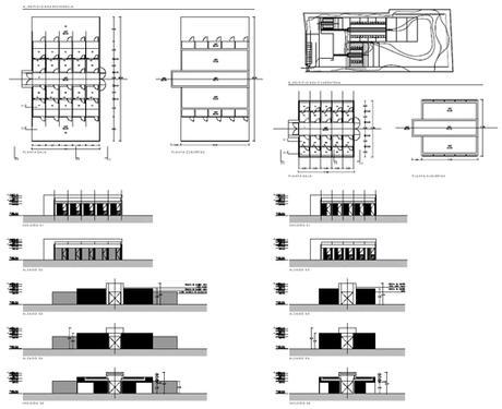
PLANTAS, SECCIONES Y ALZADOS EDIFICIO BOX RESIDENCIA + EDIFICIO BOX CUARENTENA
EL edificio box residencia cuenta con una superficie útil de 99,30m2 repartida en 10 box de 6,47m2 y un distribuidor. Cada uno de estos post cuenta con un patio exterior de 9m2, más dos patios comunes de 70m2. La nave de box cuarentena tiene una superficie de 70,5m2 repartida en 10 box de 4,22m2 con un patio exterior de 4,3m2 cada uno de ellos.

VISTAS

En una parcela inicial de 31.680m2 se plantea un área de actuación de 10.000m2 repartida en 5 núcleos: un edificio de administración, vivienda de guardés, nave box diarios, nave box residencia y nave box cuarentena.

La fachada del edificio de administración cuenta con un acabado en chapas de acero color negro, muros de ladrillo visto y carpinterías de aluminio color negro.


Las fachadas del edificio box residencia y de la nave de box cuarentena cuentan con un acabado en ladrillo visto tintado de negro, ladrillo visto y un malla metálica de protección.

