¡Y aquí estamos con el último post del año! ¡Unbelievable! Otra vez que se escapan 366 días de este año, así es como lo verán algunos, para nosotras han sido otros 366 días vividos, que no está mal ¿eh?
Disfruten de la fiesta amigos y dejen de quejarse de la navidad, que sí, que es verdad que es una época de nostalgia y consumismo, pero también de familia y generosidad, así que a vivir con intensidad y con sentido. Luego vendrán las revisiones, las listas, los propósitos de año nuevo, la cuesta de enero... Pero eso ya lo dejamos para el año que viene, para el primer post del 2017 (que les adelantamos por si no se han dado cuenta que es impar, y eso siempre es señal de que será un buen año).
Disfruten de las fiestas señores, ¡disfruten!
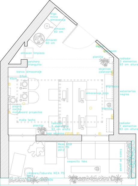
Y dicho esto volvemos al lío para contaros los entresijos del proyecto de nuestra Slow Homeoffice, seguimos por donde lo dejamos, con los conceptos que aplicamos para llevarlo a cabo. Hacemos refresh ;)
![#Proyectoemmme - Slow HomeOffice, el proyecto [2] #Proyectoemmme - Slow HomeOffice, el proyecto [2]](http://m1.paperblog.com/i/418/4188947/proyectoemmme-slow-homeoffice-el-proyecto-2-L-BtHRGf.jpeg)
![#Proyectoemmme - Slow HomeOffice, el proyecto [2] #Proyectoemmme - Slow HomeOffice, el proyecto [2]](http://m1.paperblog.com/i/418/4188947/proyectoemmme-slow-homeoffice-el-proyecto-2-L-qG7huO.jpeg)
CALIDEZ
Buscábamos: Que el espacio sea acogedor, que den ganas de estar en él haciendo las horas de trabajo más llevaderas. Un espacio cercano, que rompa barreras, que favorezca la comunicación tú a tú en el que los clientes se sientan más en una reunión de amigos en los que pueden confiar y con los que compartir dudas e inquietudes.
Lo conseguimos: con la iluminación, general, ambiental y de trabajo y el uso de los materiales como la madera, con detalles personales, fotos, nuestras mantitas para el inverno…
![#Proyectoemmme - Slow HomeOffice, el proyecto [2] #Proyectoemmme - Slow HomeOffice, el proyecto [2]](http://m1.paperblog.com/i/418/4188947/proyectoemmme-slow-homeoffice-el-proyecto-2-L-CKrNHY.jpeg)
IDENTIDAD
Buscábamos: el espacio más emmme de todos, que reflejara nuestra marca, que trasmitiera nuestros valores, nuestro know-how. Fácilmente identificable y que hiciera entender a cualquier nuevo cliente que entrase allí lo que podíamos hacer juntos.
Lo conseguimos: usando el color verano (así llamamos al verde aguamarina de nuestra marca) para los detalles, las líneas en negro, los dibujos a mano como nuestra tipografía y nuestra forma de representación, la luminosidad siempre tan importante en nuestros proyectos.
![#Proyectoemmme - Slow HomeOffice, el proyecto [2] #Proyectoemmme - Slow HomeOffice, el proyecto [2]](http://m1.paperblog.com/i/418/4188947/proyectoemmme-slow-homeoffice-el-proyecto-2-L-2ICzwP.jpeg)
DESCANSO
Buscábamos: poder desconectar unos minutos para volver a conectar con más fuerza. Más horas sentadas frente al ordenador no se traduce necesariamente en mayor productividad, por lo que era necesario un sitio para coger aire, cambiar de ambiente y si era necesario hasta echarse una siesta.
Lo conseguimos: creando una terraza que se convierte en un oasis de tranquilidad, un sitio donde mirar al horizonte y ver las cosas con otra perspectiva. Destinando un sitio propiamente para comer, para la sobremesa, para dejar de hacerlo frente al ordenador enfrascadas cada una en su mundo y compartir momentos más allá del trabajo, favoreciendo nuestra relación personal.
![#Proyectoemmme - Slow HomeOffice, el proyecto [2] #Proyectoemmme - Slow HomeOffice, el proyecto [2]](http://m1.paperblog.com/i/418/4188947/proyectoemmme-slow-homeoffice-el-proyecto-2-L-QpjOKh.jpeg)
![#Proyectoemmme - Slow HomeOffice, el proyecto [2] #Proyectoemmme - Slow HomeOffice, el proyecto [2]](http://m1.paperblog.com/i/418/4188947/proyectoemmme-slow-homeoffice-el-proyecto-2-L-4bazGI.jpeg)
VERSATILIDAD
Buscábamos: cubrir muchas necesidades en un espacio reducido, el sino de nuestros días.
Lo conseguimos: identificando esas necesidades y viendo aquellas que eran compatibles en el mismo espacio; por ejemplo: el lugar para comer podía ser el mismo en el que tener reuniones con los clientes porque nunca vamos a estar haciendo las dos cosas al mismo tiempo. Eligiendo mobiliario versátil como las mesas de trabajo, que en realidad son encimeras de cocinas sobre caballetes, que podemos retirar en el caso de que necesitemos espacio libre, la mesa de la terraza es un banco que podemos usar si hacemos unos talleres…
![#Proyectoemmme - Slow HomeOffice, el proyecto [2] #Proyectoemmme - Slow HomeOffice, el proyecto [2]](http://m1.paperblog.com/i/418/4188947/proyectoemmme-slow-homeoffice-el-proyecto-2-L-0DWaUC.jpeg)
![#Proyectoemmme - Slow HomeOffice, el proyecto [2] #Proyectoemmme - Slow HomeOffice, el proyecto [2]](http://m1.paperblog.com/i/418/4188947/proyectoemmme-slow-homeoffice-el-proyecto-2-L-cpSvCk.jpeg)
VIDA
Buscábamos: que el espacio fuera 'vivible', ya que nos pasamos gran parte del día trabajando sin darnos cuenta que el trabajo forma parte de la vida y si es así, tendremos que disfrutarlo.
Lo conseguimos: usando las plantas, creando un entorno natural y amigable, que invite a pasar buenos ratos. Una oficina donde se trabaja mucho, pero también donde se comparte mucho, nos visitan mucho, reímos mucho, en definitiva, vivimos mucho.
![#Proyectoemmme - Slow HomeOffice, el proyecto [2] Fotos de Nacho Pérez para Decoratrix](http://m1.paperblog.com/i/418/4188947/proyectoemmme-slow-homeoffice-el-proyecto-2-L-iUPtoh.jpeg)
Fotos de Nacho Pérez para Decoratrix
Y ahora dinos que prefieres: ¿vivir tu oficina o que tu oficina te robe tu vida?
Quizá este puede ser uno de esos propositos de año nuevo, mejorar ese sitio donde tanto tiempo pasas.
¿Nos vemos el año que viene? Te esperamos por aquí, en nuestro nuevo hogar :)
Un abrazo grande y,
¡felices fiestas del equipo de emmme studio!
Permalink
