
El estudio de arquitectura de A-cero, liderado por Joaquín Torres, presenta la segunda parte del proyecto de vivienda uifamiliar ubicado en una exclusiva urbanización madrileña, que a día de hoy ha reanudado su obra. En este post os mostramos la distribución de la planta baja y nueva información del proyecyo
CROQUIS



SECCIONES


ALZADOS


PROYECTO DE PAISAJISMO
El tamaño, el tipo de arquitectura y la tipografía de la parcela, nos permiten proponer un proyecto de paisajismo basado en este concepto. Se trata fundamentalmente de ordenar la topografía en pequeños bancales, dotándolos de una forma sinuosa que confiera dinamismo y movimiento a todo el espacio.

ÚLTIMAS IMÁGENES DE OBRA

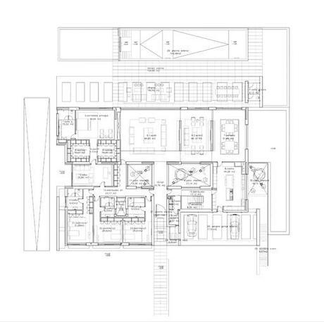
PLANTA BAJA
Este nivel de acceso se ha diseñado para distribuir tanto las zonas más comunes de la vivienda como las más íntimas. En el se sitúan 2 amplios salones, cocina y un dormitorio principal en suite con 2 vestidores. Se diseña una sala de estar, hall y ropero. Se sitúan en este nivel 3 dormitorios secundarios en suite y se habilita un espacio como vestidor para la piscina exterior. En los interiores se encuentran 4 patios y una zona de garaje exterior.

VISTAS PLANTA BAJA
OPCIÓN 1 ZONAS COMUNES
Del mismo modo que en el anterior post os mostramos como en la planta sótano existía una amplia zona común dedicada al ocio, en planta baja nos encontramos 2 amplios salones de 95 y 50m2.

En esta opción vemos una propuesta donde se ha querido jugar con el contraste de los acabados. Las paredes se resuelven en un color claro al igual que la piedra que recubre el suelo. El techo y elementos como las lámparas colgantes escultóricas se plantean en un acabado de madera oscura, un material noble que da calidez al ambiente.

El mobiliario del salón y comedor continúan con este juego de contraste en sus acabados. Podemos ver además como el interior está conectado con el exterior y los cuatro patios interiores, gracias a amplios ventanales.

Para marcar la amplitud del espacio también se sitúan grandes lienzos en paredes que marcan la verticalidad y la altura al igual que las lámparas. El propio interior contiene una carga estética y escultórica que le hace prescindir de elementos decorativos superfluos.

La cocina sigue este juego de acabados claro/oscuros incorporando nuevos materiales efecto brillo como la propia mampara de la cocina o los armarios y muebles en madera lacada.

OPCIÓN 2 ZONAS COMUNES

Esta segunda opción mantiene los contrastes de acabados de los elementos de madera en los muros. Sin embargo, el techo y las lámparas escultóricas ahora comparten un acabado monocromático con las paredes.

Las lamparas escultóricas albergadas en paneles con luz led parecen surgir con mayor naturalidad dotando al espacio de una mayor sensación de amplitud.

Este acabado homogéneo conecta las diferentes zonas comunes creando una continuidad y la sensación de pertenecer a un único espacio diáfano.

DORMITORIO PRINCIPAL
El dormitorio principal de la vivienda cuenta 2 vestidores en un total de 86m2. En el dormitorio se plantea un acabado blanco para paredes y techo en contraste con la madera oscura del suelo. El cabecero escultural diseñado con el estudio cuenta con iluminación led integrada.

EL domitorio cuenta con su propio cuarto de baño donde encontramos materiales de primera calidad como mármol y piedra natural. El espejo del cuarto de baño de plantea como un gran sobre retroiluminado que surge de la pared en un segundo plano.

El dormitorio principal además incorpora un despacho donde podemos ver un mobiliario dinámico diseñado por el estudio, además de elementos como las cómodas, estanterías, o la mesa de escritorio de cae desde el techo y pared con luz led integrada.

DORMITORIO INVITADOS
Los 3 dormitorios secundarios en suite comparten la misma dimensión con diferentes diseño. Este primer dormitorio con suelo de madera clara y acabados en pareces y techo más oscura cuenta también armarios en línea acabados en madera lacada blanco brillo.

La cómoda y estantería, ambas diseñadas por A-cero, están también acabadas en madera lacada. Todos los dormitorios cuentan con vistas al exterior de la vivienda.

Este segundo dormitorio cuenta con un cabecero envolvenre de madera lacada color negro en contraste con los muros, es común a las dos camas del dormitorio. Diferentes elementos como la cómoda y las estanterías en madera lacada color negro ayudan a potenciar este contraste frente al blanco de los armarios y pintura de paredes y techo-


En este último dormitorio reina el color blanco, cuya monocromía se ve únicamente interrumpida por el suelo de madera oscura. El mobiliario y estanterías comparten un diseño más líneas y geométrico que el resto de habitaciones.


