
Hoy el estudio de arquitectura A-cero, dirigido por Joaquín Torres y Rafael Llamazares presenta un proyecto de reforma ‘low cost’ en un apartamento de 40m2 en la capital. Con este post queremos demostraros como podemos acercar el diseño a todos los bolsillos y lograr un gran resultado con un presupuesto ajustado.
PLANTA ESTADO ORIGINAL
La distribución original del piso estaba repartida en dos dormitorios, salón-comedor, cocina y cuarto de baño.

IMÁGENES ESTADO PREVIO
La vivienda previamente contaba con un suelo de terrazo, gotelé en paredes y techo y azulejos en cocina y cuarto de baño.






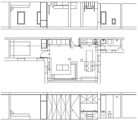
PLANTA ESTADO REFORMADO
Tras la reforma, la superficie de 40m2 queda distribuida de la siguiente manera: un único dormitorio, cuarto de baño donde se ubicaba anteriormente la cocina y un salón comedor unido a la nueva cocina.

IMÁGENES DE OBRA





IMÁGENES ESTADO REFORMADO
Se alisan las paredes y el techo de la vivienda, que se pintan en su totalidad de color blanco jugando con líneas negras en contraste.

El suelo de terrazo se sustituye por una tarima flotante en color blanco continuando con el acabado de paredes y techo, logrando así mayor sensación de amplitud.

Las puertas y ventanas también se has sustituido, planteándose de igual manera un proyecto nuevo de iluminación. Se descubre la viga metálica del edificio que se tiñe de color blanco logrando así un pequeño toque industrial.

En el mueble de TV, que sirve como almacenaje, hemos incorporado una pequeña chimenea de bioetanol a la que hemos dado protagonismo con un rectángulo vertical pintado negro en la pared, en contraste con el muro.

El sofá de color negro contrasta con el resto de mobiliario, creando una división visual del espacio entre la zona de estar y el comedor.

Para lograr amplitud en espacios pequeños (y también grandes) una buena opción es dividir los espacios con elementos, prescindiendo así de tabiques.

El conjunto del mobiliario sigue unas líneas de diseño minimalista en color blanco y negro. En la pared del salón comedor de ha ubicado una escultura horizontal diseñada por el estudio, que sigue el contraste de colores presente en todos el interiorismo.

En la cocina y salón los armarios quedan en línea con la pared con un acabado en blanco lacado. Todas las ventanas quedan protegidas por estores traslúcidos de color blanco.

En el dormitorio igual que en el salón comedor podemos observar las líneas negras en contraste que recorren paredes y techo. La reforma integral de esta vivienda con mobiliario incluido ha tenido un coste de tan solo 500€ del metro cuadrado.

Aquí os dejamos el vídeo de Las Casas de Torres emitido ayer, donde Joaquín Torres nos explica los detalles de esta reforma.
