
Os presentamos el proyecto de reforma que A-cero acaba de realizar en una vivienda unifamiliar situada a las afueras de Madrid. Se trata de una residencia de aproximadamente 450m2 construidos y dos plantas con un amplio jardín y piscina exterior.
Los propitarios querían mantener su vivienda actual, pero con una renovación total acorde con la arquitectura y estética de A-cero.
ESTADO ACTUAL DE LA VIVIENDA (PREVIO A LA INTERVENCIÓNDE A-CERO)

PROPUESTA DE A-CERO

ALZADOS

SECCIONES

Partiendo de esta premisa, A-cero propone un nuevo e innovador diseño para la fachada que rompe radicalmente con la existente en la actualidad. Frente al revestimiento de teja y ladrillo visto previo, se plantea una ligera y dinámica fachada de aluminio lacado en blanco.



En el interior se proyecta la rehabilitación integral del piso superior. Este nivel alberga dos dormitorios con sus respectivos cuartos de baño, un despacho y el dormitorio principal que incluye un cuarto de baño y un amplio vestidor.
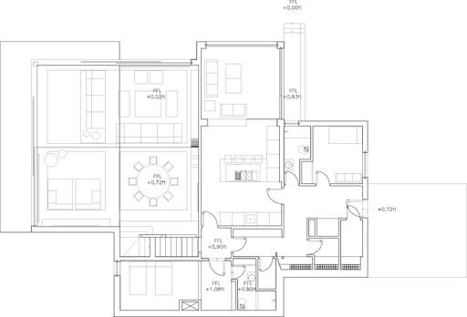
PLANTA SUPERIOR

ESTADO PREVIO A LA INTERVENCIÓN DE A-CERO


En la planta baja se reforma el área más pública (salón y comedor), mientras que el resto de estancias (cocina, zona de servicio y dormitorio de invitados) se mantienen intactas.
PLANTA BAJA

Se propone una transformación total del salón y del comedor para convertirlos en una sola y diáfana estancia divida en varios ambientes. Además, en esta zona se plantea la incorporación de grandes cristaleras abiertas al exterior para rentabilizar al máximo la luz natural y disfrutar del jardín de la vivienda.
ESTADO PREVIO A LA INTERVENCIÓN DE A-CERO



El mobiliario, diseñado íntegramente por A-cero, se distingue por la preeminencia de colores neutros y líneas sencillas acordes con la arquitectura del estudio.



Una reforma que busca aunar diseño y funcionalidad para responder a las necesidades que exige toda edificación residencial.

