
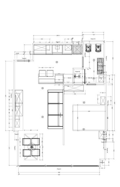
La cocina se plantea abierta al comedor, con una pequeña península que servirá de base de trabajo auxiliar y como espacio para el desayuno. Esta península sale desde el lateral de la nevera, situada en un espacio de obra generado al modificar la distribución del baño.
El lineal contiene fregadero
, lavavajillas y lavadora integrada, columna con un horno-micro y un calentador eléctrico. Bajo la placa de cocción se encuentran dos caceroleros que contienen un cajón interior para la cubertería.
En el baño se instala el inodoro, el bidé y el mueble de instalación suspendida, aportando así mayor ligereza al espacio, junto con el plato de ducha suficientemente amplio y una mampara de vidrio transparente, para dar sensación de amplitud.
Un detalle particular de este baño es que dispone de dos accesos: desde la cocina, en roble decapado blanco con poro abierto, y desde la habitación, con puerta en vidrio mate templado. Ambas están integradas en la pared para no ocupar espacio.






Un reforma sin duda importante si te paras a mirar estas fotos del antes y el después... ¿no crees?





En el próximo post...
'Un mini dúplex con decoración low cost' ¡No te lo pierdas!- Fuente -
