
El estudio de arquitectura de A-cero, presenta la segunda del reportaje fotográfico del nuevo proyecto de reforma integral de una vivienda de 112m2, ubicada en un céntrico y emblemático rascacielos de la capital: la torre de Madrid.
UBICACIÓN
El edificio de Torre Madrid se sitúa en la Plaza de España, entre las calles Princesa y Gran Vía madrileña. Un nexo que conforman una de las arterias más comerciales y culturales de la capital.

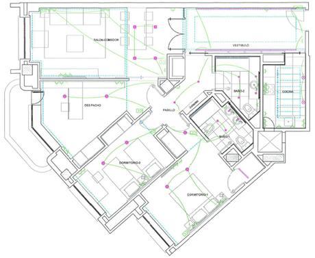
PLANTA ESTADO ANTERIOR

FOTOS ESTADO ACTUAL






PROYECTO DE REFORMA DE A-CERO
SECCIONES ESTADO REFORMADO

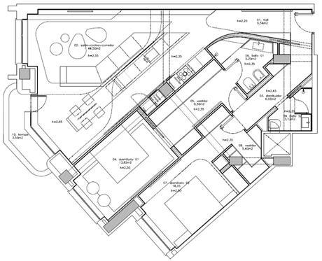
PLANTA ESTADO REFORMADO
La vivienda se distribuye en 127,6m2 construidos/112m2 útiles, repartidos en un hall, salón-comedor-cocina de 44,5m2, un distribuidor y dos dormitorios con vestidor y cuarto de baño propios. Encontramos también una pequ eña terraza de 3,5 m2.

VISTAS ESTADO REFORMADO

Se aplica un acabado global en color blanco en paredes y techo, con suelo en madera clara, a través de toda la vivienda para conectar las diferentes estancias; logrando así una sensación de continuidad y amplitud en todo el espacio.

A la hora de realizar la reforma se respeta la división original de zonas de uso común y la reservada a los dormitorios. El vestíbulo original se une con el comedor y el despacho del estado anterior para crear una zona de estar-comedor-cocina, donde localizamos mesas auxiliares diseñadas por A-cero en madera lacada y mobiliario en color blanco. Se propone a modo de elemento decorativo para crear contraste, cubrir uno de los muros con un vinilo en forma de mapamundi a partir de pequeños círculos negros.

La cocina queda resguardada por un panel de vidrio que delimita esta zona sin interrumpir la conexión visual. La encimera de la cocina continúa hasta convertirse en la mesa comedor con un acabado lacado en blanco. Los electrodomésticos y estanterías quedan ocultas integradas en línea con la pared.

La iluminación artificial en las zonas comunes se ha resuelto con un foseado en forma curva que guarda una fila de luz Led, de modo que proyecta la luz de forma tenue e indirecta. El minimalismo en el diseño de los ambientes se ve acompañado por el mobiliario elegido con tapizados en color blanco y acabados de encimeras, mesas y aparadores en madera lacada color blanco brillo.

Los dormitorios siguen la línea proyectada en el resto de la vivienda: ambientes donde el color blanco es el protagonista con suelos de madera clara, alfombras en color blanco y mobiliario en madera lacada. La cama Capri, diseño de A-cero, cuenta con un cabecero que se prolonga desde la pared al techo envolviendo la estancia.

Como contraste al acabado global, la televisión se ubica en un panelado de madera lacada gris oscuro brillo, que marca la verticalidad de uno de los muros, llegando casi a conectar con el cabecero de la cama que continúa por el techo.

En los cuartos de baños de aplica el minimalismo característico de este proyecto, donde los acabados principalmente se resuelven en madera y vidrio.
OBRA FINALIZADA









