- Arquitectura
- Br
- Klipen
- Ladrillo
- Medianeras
- Salud
- Ubuntu
- Vitor Daher
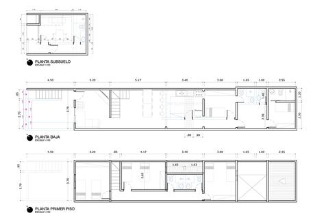
La remodelación de esta casa adosada, un tipo muy común en São Paulo, se planificó de modo a recibir una clínica terapéutica que atiende, guía y alberga a pacientes en estado de sufrimiento mental.
Su uso, extremadamente específico, tiene dinámicas que no suelen ser vistas en un proyecto común:
– Los pacientes deben tener su identidad preservada, así como su privacidad.
– Se debe controlar el acceso a medicamentos, cuchillos y otros objetos peligrosos.
– La casa debe ofrecer apoyo a las actividades cotidianas comunes, presentándose al mismo tiempo como un espacio de convivencia, descompresión, privacidad y analítico.

El programa consiste en:
– Una sala de consulta y un vestuario para los empleados, situados en el antiguo garaje;
– Un gran balcón en la fachada norte rodeado de “cobogós” (elemento de fundición cerámica), que permite una condición singular de ventilación e iluminación a la vez que protege la identidad de los pacientes y crea una relación escenográfica de semitransparencia con la calle.
– La creación de una cocina que se integra al salón mediante la remoción de 3 paredes internas, la instalación de estructura metálica y la utilización de los mismos “cobogós” que pueden ser vistos en la fachada. A la vez que integra la cocina al salón, los “cobogós” actúan a modo de obstáculo poroso para dificultar el acceso de los pacientes a cuchillos y a otros elementos peligrosos.
– Dos suites y un baño en la planta baja y tres habitaciones y dos baños en la planta superior.











Arquitecto: Vitor Daher
Estudio: Ubuntu Arquitetura
Especialidad: Arquitectura Sostenible
Información de la obra
Nombre de la obra: Residencial Terapéutico Vila São Paulo
Status: Construido
Arquitecto: Pablo Mauleón, Alexandre Campini
Ubicación: Rua Tucuna, 1151, São Paulo, Brasil
Arquitectos a cargo: Vitor Daher
Área (m2): 160
Año del proyecto: 2018
Equipo técnico: GDF Engenharia
Créditos de fotografías: Manuel Sá

- Arquitectura
- Br
- Klipen
- Ladrillo
- Medianeras
- Salud
- Ubuntu
- Vitor Daher

