
Residential building design, located in Gdansk, Poland.
The building architecture is base on a contemporary style with a combination of glass walls and steel pillars showing a united light box divided in 4 floors.
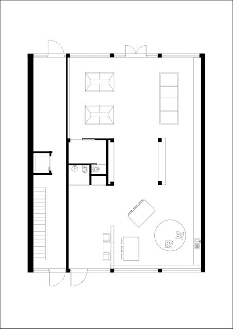
The idea of the eco-grocery store, situated in the first floor, is to be a reflection of the new healthy lifestyle related with using local and eco products. The main concept is not only sell the product but also educate the customers and the citizens, as a result of that I decided to design the cooking school too. All the space is connected with elements such as wood, shelves, or the long countertop.
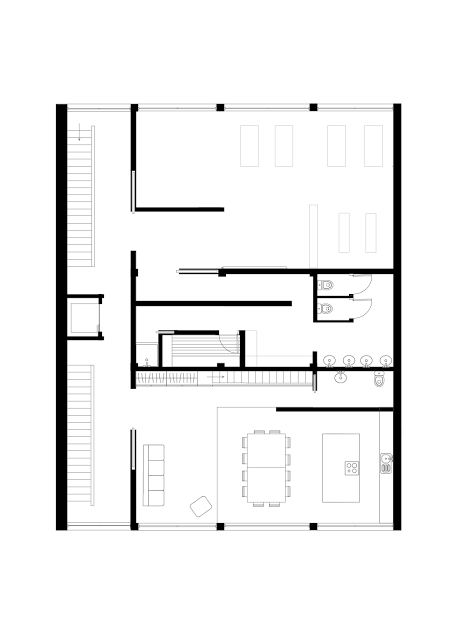
First floor, destined to the common room, is used by the habitants of the building. This space is divided in two areas, a gym and a multifunctional room (parties, meetings etc.)
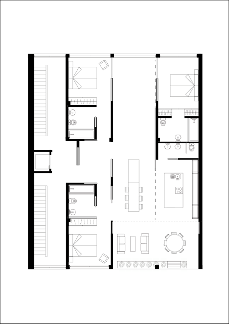
Apartments are situated in the third and forth floor. The first one has 3 rooms and the second one has 2 rooms. The apartments are distributed based on the concept that home has no limits between inside and outside, and neither between private and public space. This idea comes with an interior design based on modular spaces, with mobile and hidden walls that can open or close the space depending on the living needs. In order to continue the contemporary style of the building and the healthy style of life, the interior presents a combination of natural materials and earth tones. Diseño de edificio residencial, localizado en Gdansk, Polonia.
El edificio, dividido en cuatro plantas, esta concebido como una unidad simple, con la maxima funcionalidad. Con marcado estilo contemporáneo destaca la combinación de superficies acristaladas con elementos arquitectónicos vistos como los pilares de acero.
En la primera planta encontramos una tienda de comida ecológica que alberga una escuela de cocina al mismo tiempo. El establecimiento responde a la necesidad de una nueva forma de vida basada en el consumo de productos locales y de producción ecológica. Se trata de un espacio que nos se limita a la adquisición del producto sino a enseñar e inculcar a los clientes de los beneficios del consumo de este tipo de productos. El diseño del interior responde a este concepto creando un espacio conectado entre sí mediante materiales naturales o mobiliario como las estanterías o la encimara que cruza de lado a lado la estancia. La segunda planta esta destinada al uso y disfrute de los habitantes del edificio. Dividida en dos espacios encontramos un gimnasio con sauna, y una sala multifuncional para fiestas o reuniones. Los apartamentos ocupan la tercera y la cuarta planta. El primero con tres habitaciones y el segundo con dos habitaciones, están diseñados basados en una nueva forma de concebir el espacio, como un espacio sin limites entre interior-exterior, ni entre público-privado. Este resultado se consigue con el diseño de un espacio modular que puede abrirse o cerrarse por completo adaptándose a las necesidades de sus habitantes.
APARTAMENT



COMMON ROOM

GROCERY STORE - COOKING SCHOOL

PLANS
Grocery store

Common floor


