Esta es una casa de fin de semana está situada dentro de la zona de las montañas profundas de Kanou, ciudad Kimitsu. Una artista de la pintura japonesa tradicional, Kaii Higashiyama (1909-1999) mencionó una vez que se despertó en una pintura de paisaje del majestuoso barranco de este sitio. Esta casa está sentada en la ladera mirando este barranco.

La forma exterior del edificio parece ser un simple cubo. Sin embargo, el interior consta de dos capas de la planta cuadrada tradicional, donde un volumen cúbico se inserta en los puntos de intersección producidos por las superficies de las paredes, el suelo y el techo que dividen el espacio.
El ángulo de intersección de cada cubo se define por la regla de un algoritmo, produciendo el carácter más prominente de este proyecto – que los cubos adyacentes están inclinadas en un ángulo definido uno contra el otro.






El ángulo de rotación de los cubos definidos por la regla algorítmica disecciona el volumen interior en varios espacios de acuerdo con las formas de cabecera del plano de corte, proporcionando diversas condiciones espaciales en cada habitación individual. El interior producido por este método tiene diversas características para cada espacio, aunque cierto sentido de orden es dado a todo el edificio, ya que el ajuste del ángulo del cubo no es al azar.
Esta condición permite experimentar la convivencia de la orden y la diversidad como una antinomia basada en la sensación física del espacio. Se puede decir que tal coexistencia, orden y diversidad, es la característica más significativa del espacio arquitectónico producido por una regla algorítmica.






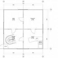
Diagrama conceptual
El Toplight en el techo trae la luz del sol y llena la habitación durante el día. Los rayos de la luz del sol provienen de direcciones inesperadas y entrecruza en el interior, agregando más capas de complejidad a la ya diversa condición interior.
El ángulo inicial de giro del cubo se fija de acuerdo con el ángulo de la pendiente del terreno. Por lo tanto, el magnífico escenario natural se refleja y articula a las condiciones espaciales del espacio interior. Los ocupantes del espacio pueden sentir la sensación de unidad con el paisaje visible fuera de las ventanas.
Esta casa de fin de semana se completó bajo una metodología única de configuración de los espacios. El resultado produce una nueva y original sensación física y la experiencia del espacio.
Yuusuke Karasawa Architects, 2013©
Fotografías: © Yuusuke Karasawa Architects
Artículo relacionado:
TECNNE | Arquitectura + contextos



Escrito en: Arquitectura
Autor: Marcelo Gardinetti
Fotografía: Yuusuke Karasawa Architects
Cite: Rotación algorítmica, tecnne
Enlace corto: http://tecnne.com/?p=16996
Tags: arquitectura, giros espaciales, Rotación algorítmica, Villa Kanousan, vivienda, Yuusuke Karasawa, Yuusuke Karasawa Architects
Los artículos de TECNNE se encuentran bajo la licencia Creative Comons | The articles of TECNNE are found under license Creative Comons
Deja un comentario
Clic para cancelar respuesta.Nombre (requerido)
Correo electrónico (no será publicado) (requerido)
Web
