
Hoy el estudio de arquitectura A-cero, dirigido por Joaquín Torres y Rafael Llamazares, quiere comunicarles el inicio de la comercialización de la Manzana 9 en La Finca Las Marías, la urbanización A-cero Tech situada en Torrelodones.
Tras el éxito obtenido en tan solo un año en la venta de la primera fase se inicia la comercialización de la segunda fase, la manzana M9, con un total de 19 nuevas viviendas.

El conjunto residencial, formado por viviendas unifamiliares, se integra en el entorno medioambiental de la zona de Torrelodones, en la que destacan el paisaje rocoso y el abundante arbolado, al tiempo que aúna exclusividad, lujo, diseño y un precio por debajo de lo imaginable. En Finca las Marías podrás encontrar tu vivienda de lujo a 20 minutos de Madrid desde solo 375.000 euros.
EMPLAZAMIENTO

Torrelodones está perfectamente comunicada con la capital a través de la M-40 y la M-50 y cuenta con una estación de Renfe Cercanías a tan solo dos minutos de la urbanización, que también se beneficia de diferentes líneas de autobuses que comunican en 20 minutos Torrelodones con el centro de la capital. Además, cuenta con todos los servicios y equipamientos necesarios como hospitales, colegios, institutos, instalaciones deportivas, etc.
Existen 2 tipos de pareados, uno en planta baja de 157m2, y un segundo que se desarrolla en 2 niveles, con una superficie total 239 m2.
VIVIENDA DE UNA PLANTA
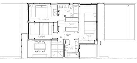
PLANTA TIPO
Las viviendas cuentan con 157m2 distribuidos en: un hall, una cocina de 11,28m2, un cuarto de limpieza, un salón-comedor de 22,70m2 con porche, un distribuidor, un dormitorio en suite con una superficie total de 22,60m2 y, otros dos dormitorios con un cuarto de baño compartido.
Cuenta además con porche de acceso, porche del salón-comedor y, porche del garaje de 34,30m2.

VIVIENDA DE DOS PLANTAS
PLANTA BAJA
Las viviendas de dos plantas, con una superficie total de 239 m2 cuentan en planta baja con las zonas de uso común ( hall, salón-comedor de 33,50m2, terraza de 36m2, una cocina de 13,45m2 y cuarto de limpieza), un dormitorio de invitados y un aseo de cortesía.

PLANTA ALTA
En planta alta encontramos las estancias más privadas, como un dormitorio en suite de 20,80m2 con vestidor, dos dormitorios dobles de 17,22m2 y 12m2, y un cuarto de baño completo.

EXTERIORES
Los materiales utilizados para la fachada son paneles de cemento reforzado en color blanco y madera, y el vidrio negro para los ventanales.

Desde el principio, se ha tenido en cuenta el aspecto medioambiental, fundiéndose la urbanización con el entorno natural, en un terreno donde se ha respetado la flora y fauna autóctonas en todas las zonas comunes de la misma.

Las viviendas A-cero Tech se basan en un innovador sistema de construcción industrializado unido a la exclusiva calidad arquitectónica. En cada vivienda de la Finca Las Marías, se aúnan los mayores avances técnicos con la estética más actual, con un corto plazo de entrega.
Puedes ver fotografías de la vivienda piloto A-cero Tech en el siguiente enlace:

