
Este martes por comenzamos el montaje de la segunda fase del nuevo centro de reinserción sociolaboral de la Fundación Recal, diseñado por A-cero Tech. En el post de hoy os mostraremos una selección de imágenes de ambas fases del montaje.
RECAL nace 2001, como una fundación sin ánimo de lucro con el objetivo de ayudar a reincorporarse plenamente en la sociedad española a aquellas personas (y sus familiares) que se encuentran afectadas por la enfermedad de la adicción a sustancias psicoactivas. La Fundación basa su labor entendiendo el abuso y dependencia a estas sustancias como una enfermedad, ofreciendo un programa de ayuda para sufragar el coste total o parcial del tratamiento a personas personas con recursos limitados o inexistentes.

La misión de la Fundación RECAL es doble: por un lado, se pretende ayudar a las personas afectadas por la enfermedad de la adicción a conseguir la abstinencia de todo tipo de sustancias psicoactivas, a la vez que detener, retrasar o revenir el deterioro de todo problema asociado al consumo. Por otro, se potencia entre los beneficiarios del programa el aprendizaje de una nueva forma de vivir y encarar la realidad. Este último aspecto, unido a la asistencia regular a grupos de autoayuda son considerados como la mejor protección a largo plazo contra las recaídas, y son la base para mantener una abstinencia continuada y completa de todo tipo de drogas.

Puedes colaborar con la Fundación RECAL directamente a través de una donación en el siguiente número de cuenta bancaria: 0065 0250 15 0001009090
O en su página web: http://www.fundacionrecal.org/index.php/Contenidos-Recal/Colabora/haz-una-donacion/menu-id-26.html
CENTRO A-CERO TECH DE REINSERCIÓN DE LA FUNDACIÓN RECAL
El estudio de arquitectura de A-cero, dirigido por Joaquín Torres & Rafael Llamazares resultó ganador del concurso para la proyección de este centro de tratamiento A-cero Tech de ayuda contra la adicción de la Fundación RECAL, situado en la población de Majadahonda en Madrid. Formado por 2 volúmenes, uno en planta baja y uno en planta baja más alta, destinados a la ubicación de las habitaciones y la zona de actividades. Los materiales utilizados para este proyecto son paneles de cemento reforzado y el vidrio negro.
LOCALIZACIÓN

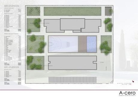
PLANTA GENERAL; MÓDULO DE ACTIVIDADES Y MODULO DE HABITACIONES

ALZADOS MÓDULO DE HABITACIONES

MÓDULO HABITACIONES PLANTA BAJA
Como antes se ha citado, consta de 2 volúmes en planta baja (habitaciones y zona de actividades) en los que se encuentran unas zonas comunes donde se sitúa un salón común de 12m2, zona de porche – terraza de 80m2, y un distribuidor de 44m2. En el área de descanso se diseñan en este nivel 13 habitaciones de 13m2 más una lavandería con las mismas dimensiones, y en planta alta 6 habitaciones con la misma superficie más un amplio distribuidor. Estas estancias corresponden al módulo de habitaciones y se distribuyen en 350m2.

MÓDULO HABITACIONES PLANTA ALTA

MÓDULO HABITACIONES VISTA FRONTAL

MÓDULO HABITACIONES VISTA TRASERA

ALZADOS MÓDULO DE ACTIVIDADES

MÓDULO DE ACTIVIDADES
En cuanto a este volúmen, se distribuyen las zonas más públicas del centro de tratamiento. Hall, recepción, porche + terraza, zona de archivo, 3 despachos (dirección, psiquiatría, terapeutas), 3 aseos (minusválidos, señoras y caballeros), gimnasio, salón, comedor, cocina, despensa, cuarto de basuras, consulta médica, 6 zonas de terapia, cocina – office, y 3 salas de conferencias, todo en 335m2, en nivel de planta baja.

MÓDULO ACTIVIDADES VISTA FRONTAL

MÓDULO DE ACTIVIDADES VISTA TRASERA

PAISAJISMO
En términos de paisaje, cabe destacar su proximidad al Parque Regional de la Cuenca Alta del Manzanares, creado en 1985, es el espacio natural protegido de mayor superficie de la Comunidad de Madrid y uno de los de mayor valor ecológico y paisajístico. Está situado al noroeste de la región y se extiende alrededor del curso alto del río Manzanares, a lo largo de 52.796 hectáreas, que representan aproximadamente el 6,6% del territorio madrileño. Sus principales municipios de referencia son Manzanares el Real y Hoyo de Manzanares. La Unesco lo declaró Reserva de la Biosfera en 1993.
Se asienta sobre la Sierra de Guadarrama, con la excepción del Monte de El Pardo y su apéndice oriental, el Monte o Soto de Viñuelas. Su lugar más destacado es La Pedriza, el conjunto granítico más importante de Europa, que recibe el tratamiento de Reserva Natural Integral, por albergar ecosistemas escasamente modificados.
Su amplio rango altitudinal, da lugar a la formación de numerosos ecosistemas, entre los que destacan la alta montaña, los encinares, los enebrales, los jarales, los melojares y las zonas húmedas.
PLANTA

Con la propuesta de paisajismo, se busca integrar la actuación urbanística dentro del paisaje circundante. Creando, además, un espacio exterior de apoyo a las actividades que se realizarán en el centro.
El proyecto presenta una estructura que permite su utilización con fin educacional. Se trata de un espacio que permite desarrollar actividades al aire libre en contacto con la naturaleza y el medio ambiente.
Se pretende estimular la biodiversidad y recrear micro hábitats naturales de diversas comunidades faunísticas, asegurando conjuntamente con los espacios naturales envolventes, un hábitat global que permita la preservación de la fauna.

Formalmente el proyecto es muy sencillo. Un camino ancho en torno al edificio, pavimentado en jabre, separa el edificio del grueso de las plantaciones. Es el lugar del jardín con mayor capacidad de carga, pensado para contemplación del jardín e ideado para realizar numerosas actividades al aire libre.
La zona de plantaciones está separada en dos áreas. Por un lado se plantea una zona de plantación de aromáticas, contiguo al edificio, creando un vistoso parterre de colores y texturas lleno de aromas que dote de un ambiente natural a todo el espacio. Por otro lado, el resto de plantaciones se ubican en todo el perímetro de la parcela.
Este espacio está constituido por una gran superficie de prado florido del que van surgiendo distintas especies de árboles y arbustos, bien de forma aislada o creando grupos, que proporcionan dinamismo a todo el espacio. A través de la disposición y plantación de las especies vegetales se van generando distintos espacios temáticos, con identidad estética propia, pensados para albergar distintas funciones y usos. Toda esta área está recorrida por un camino estrecho, pavimentado de jabre, que permite explorar todo el espacio y adentrarse en las distintas unidades temáticas. Este camino está delimitado por un elemento metálico de color llamativo que se va transformando en banco en distintas zonas del jardín.
Las distintas zonas o áreas temáticas que constituyen el jardín.
ENTRADA PRINCIPAL
A la derecha de la entrada a la fundación se propone la creación de una composición vegetal, constituida por 12 cipreses, por tratarse la imagen corporativa de la fundación. Este grupo de cipreses surgen de un gran prado florido puntuado por grupos dispersos de pitósporos.

ZONA DE REZO
A continuación de la zona de entrada, se dispone, casi escondida entre un grupo de arbustos, una zona plana pavimentada en jabre de forma circular destinada al rezo, reflexión y contemplación.

JARDÍN DE PÁJAROS
Se pretende en este espacio la creación de atractivos para los pájaros y un ambiente adecuado para su observación. Se realizó un estudio de avifauna local con interés para ser atraído al jardín, de forma a conocer la vegetación adecuada para su alimentación y sus hábitos de nidificación. A partir de este estudio, se eligió la vegetación que compone la plantación. Se propone la implantación de estructuras para descanso y alimentación con el fin de favorecer la observación de estas aves.

JARDÍN ACUÁTICO
Se pretende recrear un pequeño lago naturalizado, donde se pueda captar y almacenar agua de lluvia. El objetivo es recrear un ambiente húmedo que permita instalar distintas especies acuáticas y palustres que de riqueza y diversidad a todo el jardín.

JARDÍN DE MARIPOSAS
Este espacio pretende recrear un lugar atractivo para las mariposas, en cualquier fase de su vida, huevo, larva, crisálida y adulto. Se estudiaron las especies de mariposas existentes en la zona de proyecto y se eligen una serie de plantas que además de su poder ornamental son atractivas para las mariposas en alguno de sus estados.

VÍDEO DE LA PRIMERA FASE DEL MONTAJE
IMÁGENES DE LA PRIMERA FASE DEL MONTAJE









































IMÁGENES DE LA SEGUNDA FASE DEL MONTAJE


















Interior




