
Hoy el estudio de arquitectura de A-cero dirigido por Joaquín Torres y Rafael Llamazares, presenta una selección de cocinas que corresponden a algunos de los últimos proyectos del estudio. Podemos observar como el diseño de las cocinas siguen la estética del conjunto de la vivienda.
COCINA EN UNA VIVIENDA UNIFAMILIAR DISEÑADA POR A-CERO EN MADRID

SECCIÓN

VISTA
Esta cocina cuenta con una encimera realizada en kryon, una campana acabada en espejo y mobiliario en madera color gris. El mueble alto se convierte en zócalo en forma de ‘C’ que continua por la encimera, quedando esta suspendida. En los muebles bajos quedan inclinados hacia la isla central en vuelo, formada por dos ‘L’, en que alberga la vitrocerámica, freidora y teppanyaki.

COCINA ‘OPEN SPACE’ EN UNA VIVIENDA UNIFAMILIAR A-CERO EN BARCELONA

PLANTA

VISTA
Esta cocina forma parte de un espacio, abriéndose hacia el salón comedor. Integrada en la pared, la encimera está acabada en madera para trasladar la calidez del techo en la cocina.

PROPUESTA DE INTERIORISMO PARA UNA VIVIENDA UNIFAMILIAR

SECCIÓN

VISTA
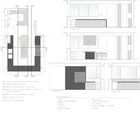
Esta cocina está ideada para un espacio reducido. La encimera en blanco y negro está acabada en corian, al igual que la isla central y la mesa de office en vuelo. Los muebles altos y bajos se realizan en madera, y tanto la campana como la lámpara tienen revestimiento en espejo. La encimera atraviesa la cocina creando una línea en zig zag de suelo a techo.

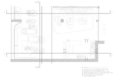
COCINA EN GIMNASIO EN UNA VIVIENDA UNIFAMILIAR DISEÑADA POR A-CERO EN LA CIUDAD CONDAL

PLANTA

VISTA
Esta cocina se localiza en un gimnasio ubicado en planta sótano. Se trata de una cocina integrada con una barra en kryon blanco.

COCINA EN LA VIVIENDA UNIFAMILIAR DISEÑADA POR A-CERO EN DUBAI

SECCIÓN

VISTA
La geometría de la fachada de se proyecta en el diseño de la cocina en blanco y negro, protegida por un panel de vidrio. El espacio queda distribuido en dos ambientes gracias a sus tres encimeras. En la central encontramos la vitrocerámica, frente a una segunda donde se encuentra el lavabo y los muebles altos alineados con la pared.

COCINA EN LA VIVIENDA DISEÑADA POR A-CERO EN BEIRUT

SECCIÓN

VISTA
Las volumetrías de la fachada se traducen en un diseño de cocina repleto de planos inclinados, que forman las tres encimeras. En esta cocina observamos una mesa volada para ocho comensales, sobre la que cuelgan bolas de acero que funcionan como lámparas. La isla central cuenta con grifo, campana extractora y fuegos. Los muebles altos se encuentran alineados con la pared.


LOS COMENTARIOS (1)
publicado el 12 enero a las 00:28
bueno