La residencia es una casa de temporada y un estudio frente a la bahía de Willapa en el suroeste del estado de Washington. La casa se levanta en el borde de los humedales de marea y fue diseñada para tocar ligeramente el suelo, mediante la utilización de materiales sencillos, duraderos y económicos.

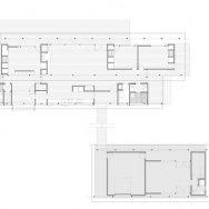
Los espacios del programa se reunieron en tres plataformas de madera elevadas. Un espacio de trabajo, estudio de fotografía y jardín sirven como puerta de entrada al sitio. Un paseo marítimo planteado atraviesa una huerta protegida y conduce a la casa principal. Un pequeño vestíbulo de entrada y de apoyo a los espacios está situado en la segunda plataforma.






En la tercera plataforma, dormitorios y espacios abiertos principales abren a la orilla del agua, unidos por una amplia terraza. Techos colgantes simples reflejan la organización básica de la casa y ofrecen protección contra la persistente lluvia costera.
Allied Works Architecture©
Fotografías: ©Allied Works
Artículo relacionado: Instrumentos de experiencia escenica
TECNNE | Arquitectura + contextos






