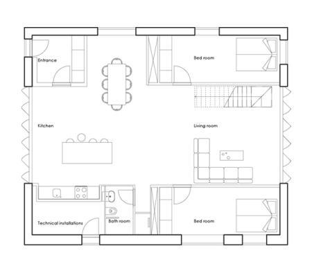
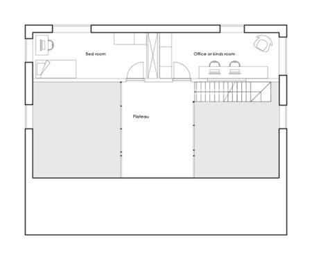
¿Os imagináis viviendo en una casa hecha con contenedores marítimos en desuso? Yo desde luego si el resultado es como esta casa siiii. No es exactamente una casa prefabricada, sino que se trata de una casa hecha con un sistema modular en el que la estructura está compuesta por contenedores apilados. La empresa que lo desarrolla es la danesa World Flex Home y esta vivienda es sólo un ejemplo de las distintas versiones que cada cliente puede personalizar. Bambú y madera suelen utilizarse en los acabados exteriores. En el interior puentes – pasillo, maderas y distribuciones diáfanas camuflan completamente lo que realmente hay en el interior. Yo me pido una pero ya :)) Feliz jueves!
Revista Decoración
Sus últimos artículos
-
Temporada de celebraciones: regalos de diseño escandinavo ERNST, que siempre aciertan
-
Por estas galletas de chocolate vale la pena encender el horno
-
Mary Hill Estate: Elegancia bohemia y alma histórica en la costa sueca
-
El lavadero negro mate con grifo dorado: inspiración casa de campo sueca















