
El estudio de arquitectura A-cero, dirigido por Joaquín Torres, presenta el proyecto para la realización de un masterplan en Dubai: “The Heart of Europe”, ya abordado en el pasado pero que os ampliamos ahora, dada la gran cantidad de material gráfico existente. Hoy vamos a continuar con el plan diseñado para el conjunto de Suiza, un trabajo inédito, diseñado por A-cero en 2008. Comenzamos con el diseño para la realización del hotel y luego seguiremos con las diferentes tipologías diseñadas para las villas y apartamentos.
BOCETOS




En concreto el complejo incluye: 200 apartamentos, un hotel, 20 villas, 15villas overwater y dos piscinas.
HOTEL
SECCIONES

ALZADOS

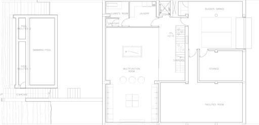
PLANTA SOTANO

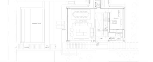
PLANTA BAJA

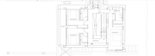
PLANTA PRIMERA

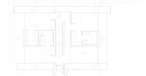
PLANTA SEGUNDA

PLANTA TERCERA

PLANTA CUARTA


Se contemplan cuatro tipologías distintas de villas diseñadas para la zona de Suiza: beach villas, capital villas, water villas y marina villas. El modelo estándar constaría de 500m2 de superficie y cuatro niveles: sótano, bajo, primera planta y segunda planta.
BEACH VILLAS
ALZADOS


SECCIONES

PLANTA SÓTANO

PLANTA BAJA

PLANTA ALTA

SOLARIUM


MARINA VILLAS
ALZADOS

SECCIONES

PLANTA SOTANO

PLANTA BAJA

PLANTA ALTA

SOLARIUM


Consiste en un master plan de viviendas unifamiliares y varios modelos de villas, cuyos diseños con elementos de madera hacen referencia a la arquitectura típica de la región suiza de Ginebra.

APARTAMENTOS

WATER VILLAS
PLANTA BAJA

PLANTA ALTA

PLANTA SOLARIUM



Suiza, se une así al entramado de islas de que conforman el “Corazón de Europa” a tan solo 5km de la cosa de Dubai.
