
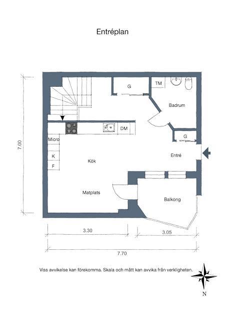
Ya ha llegado el tan ansiado viernes, y con él viene también el home tour de la semana. Un sorprendente duplex en el que la cocina es la absoluta protagonista de la planta baja, ocupando todo el espacio de la misma y convirtiéndose en obligada zona de paso.
No es la primera vez que vemos esta peculiaridad en un piso , en su día ya contemplamos esta sorprendente distribución con la cocina en el pasillo pero quizás en aquella ocasión se trato mas por problemas de espacio que por otras razones.
En esta vivienda la cocina es de grandes dimensiones y con una cuidadísima decoración en madera clara y electrodomésticos de acero. Como ya os he comentado al principio ocupa practicamente toda la planta baja dejando solo espacio para un aseo y una pequeña zona de office integrada en la cocina pero con un tratamiento diferente tanto en las paredes como en el mobiliario.




Una inmensa cantidad de muebles de cocina y armarios recorren las paredes de la planta baja, proporcionando una gran capacidad de almacenaje y creando incluso un rincón de descanso a modo de hall en la entrada.
Aunque la estancia esta repleta de muebles, el color claro de estos junto con la introducción de paneles de cristal y sobre todo el tabique a media altura de la zona de cocción, permite que la luz fluya por todo el espacio y la sensación de claridad y amplitud contrareste el exceso de muebles.


Anteriormente ya comentamos que se ha creado una zona de comedor en la propia cocina con un revestimiento diferente. Papel pintado en la pared, unos cuadro y sillas transparentes creando un espacio moderno y elegante.

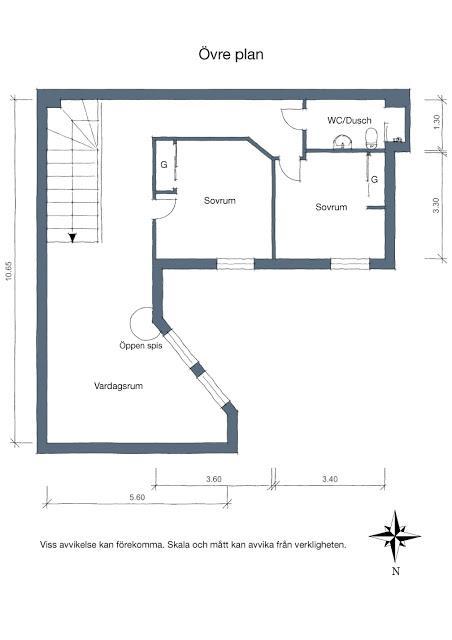
Atravesando la cocina llegamos hasta las escaleras para acceder a la planta superior en la que se encuentra una pequeña zona de estar, dos dormitorios y un baño.

Según llegamos nos encontramos con una preciosa zona a modo de recibidor y seguido una gran chimenea redonda que da calor a la pequeña sala (Desde luego si la comparamos con la inmensa cocina de la planta baja) Una estancia cálida con un sofá redondo y una delicada zona de lectura que la hace de lo mas acogedora.




En el dormitorio principal es en la única estancia en la que encontramos color. Un llamativo papel pintado con rayas estampadas con dibujos negros y un vivo color fucsia. Por el contrario el otro dormitorio sigue la linea general del resto del duplex; colores neutros y paneles de cristal blanco.
Al fondo del pequeño pasillo el baño, donde cabe reseñar la pared de paves en la ducha que resta la sensación de estrechez en el baño.





Vía¿Os convence pasar por la cocina para subir a la planta superior donde esta la zona living y dormitorios? ¿O preferís una cocina mas pequeña con la zona living abajo?
Me puedes seguir en

