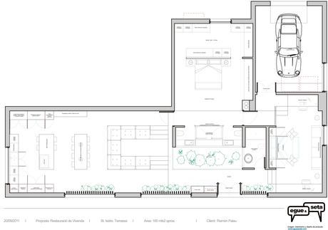
Hoy visitamos un loft en Terrassa, el cual ha sido diseñado por el estudio Egue y Seta. Un proyecto en el que la luz, la vegetación y el juego entre alturas y espacios son los protagonistas. El suelo de hormigón pulido en cocina y comedor y techos con vigas vistas, se mezclan con materiales más cálidos como la madera. En resumen, un loft de estilo escandinavo industrial en el que a pesar de tratarse inicialmente de un espacio amplio y frío inicialmente, se consigue un ambiente cálido y acogedor gracias a los materiales y texturas elegidos en su decoración.
Para ver más imágenes y conocer más a fondo el proyecto, pinchar aquí.













¿Qué te ha parecido? ¿Te gustaría vivir en un loft asi?
¡Buen día amigos!
Vía
