Parecía que sería una moda pasajera, pero no, las paredes, puertas y muebles pintados en pintura especial para pizarra siguen siendo tendencia, básicamente porque son prácticas y decorativas.
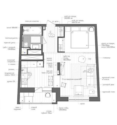
Si ayer hablábamos de la distribución de los pisos pequeños, fijaos en la de éste (45 m²) que también es muy buena opción, porque a pesar de estar la cama en el salón, está en un entrante, separado además por un escalón falso creado para almacenaje y unas cortinas.
Pero lo que quería señalar de este piso es la pared negra pintada con pintura de tiza. Una forma de adornar nuestras paredes y muebles, que un día se puso de moda y ha sabido quedarse y mantenerse entre las opciones más baratas y decorativas para cambiar un rincón la decoración en casa.
En este caso la pared negra la han ‘tuneado’ con el tema bar, pero podría perfectamente adaptarse a una zona de café, de dulces, de desayuno, de salsas, para que jueguen los niños, mini oficina, etc. etc. ¿veis las posibilidades? como puede la tiza puede borrarse tan fácilmente las opciones son infinitas y tan efímeras como deseemos. ¡Feliz miércoles!













Vía: int2 architecture
