
Hoy nos desplazamos hasta Andalucía para recordar esta promoción de 25 viviendas que A-cero ha diseñado en el municipio gaditano de San Enrique de Guadiaro, un pequeño pueblo situado junto a la exclusiva urbanización Sotogrande, con nuevas imágenes.
PLANOS VIVIENDA TIPO 1
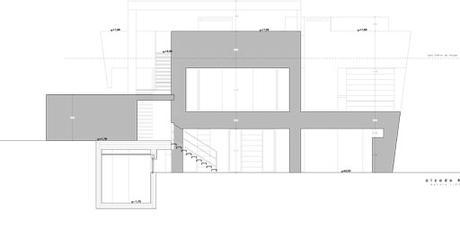
SECCIONES


ALZADOS


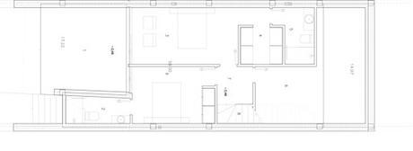
PLANTA SÓTANO
En este mismo nivel se halla la cocina, un aseo de cortesía y el salón (a doble altura) que tiene salida directa a un pequeño jardín trasero.

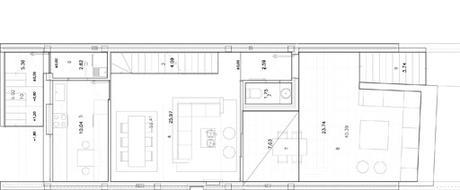
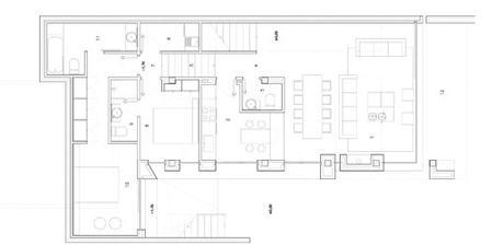
PLANTA BAJA
Este nivel se ha destinado para ubicar la zona más pública de la vivienda, en el que se sitúa el salón, comedor, cocina …

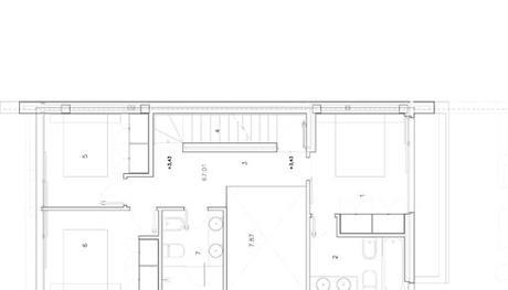
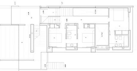
PLANTA ALTA
Los dos dormitorios de la vivienda se encuentran en la primera planta con sus respectivos baños.

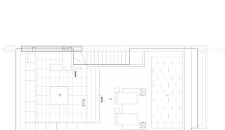
PLANTA CUBIERTA
Además, la cubierta se ha aprovechado para instalar una pequeña piscina y una zona chill-out dadas las buenas condiciones climáticas que ofreces esta zona durante prácticamente todo el año.

PLANO VIVIENDAS TIPO II
SECCIONES

ALZADOS




PLANTA BAJA

PLANTA ALTA

PLANTA CUBIERTA

IMÁGENES EXTERIORES
Se trata de un conjunto de 16 adosados y 9 casas individuales, que destacan por el juego vertical de volúmenes cúbicos que componen sus estructuras. Un diseño de líneas limpias y formas dinámicas de acuerdo al estilo propio de A-cero.
Los adosados constan de 300m2 construidos distribuidos entre sótano, nivel de acceso, primera planta y cubierta. La verticalidad de su estructura constructiva permite el acceso desde el exterior por dos niveles: por el garaje (semi-cubierto con una pérgola) que da paso a la zona de servicio, al lavadero y a la despensa-trastero, y por la planta baja a través a de unas escaleras exteriores.













INTERIORISMO
Por su parte, las casas individuales constan aproximadamente de una superficie construida de 320m2 y se han desarrollado en tres plantas (bajo, primera planta y cubierta).


En el nivel de acceso se localiza el salón-comedor con acceso al porche, un aseo de cortesía, la cocina y dos dormitorios con sus respectivos cuartos de baño. La planta superior incluye tres dormitorios más en suite y un porche. Por último, en la cubierta se ha instalado una terraza semicubierta y un solarium.

En ambos tipos de construcciones se ha buscado rentabilizar al máximo el espacio para convertir unas viviendas de dimensiones no excesivamente grandes en espacios amplios y luminosos, principalmente mediante grandes ventanas y cristaleras que conecten con el exterior.

La decoración elegida es limpia y discreta. Se ha optado por elementos con tonos neutros como es el caso de las tapicerías, alfombras y acabados en tonos beige, blancos rotos y marrones suaves, combinados con algún toque de color como las sillas rojas “pantom” del comedor.






