
El estudio de arquitectura A-cero presenta uno de sus trabajos más célebres en vivienda unifamiliar de gran escala.. Situada a las afueras de Madrid, sobre una parcela de 3.000 m2, se trata de una vivienda de 3 plantas, dispuestas en tres niveles diferentes con una superficie de 1.600 m2.
SECCIONES


ALZADOS


PLANTA SÓTANO

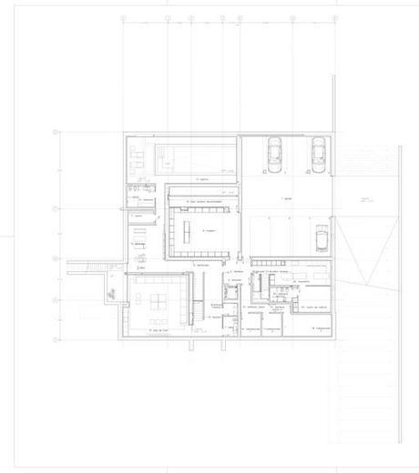
PLANTA BAJA

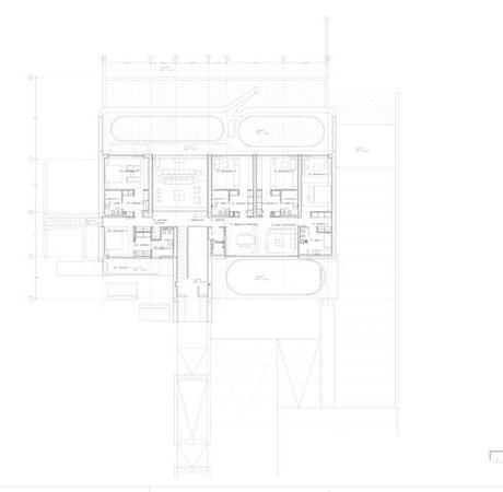
PLANTA ALTA

PLANTA CUBIERTA

FOTOS DE OBRA











EXTERIORES DÍA

Se ha buscado el perfecto funcionamiento de la vivienda en relación a las necesidades de la propiedad, adaptándose a un terreno de pendiente media y volcando las estancias principales a los espacios comunes de la urbanización, buscando así un mayor aprovechamiento de las vistas y uso de la superficie de parcela libre.



El acceso al sótano puede realizarse tanto desde la zona principal de la vivienda como directamente desde el garaje diferenciándose así dos zonas; la zona de piscina, instalaciones deportivas, relax y cine y la zona destinada al desarrollo de los trabajos de servicio, situada al este de la edificación. Se resuelve dando un acceso directo desde el garaje y conectándola a la planta baja con una escalera que desembarca en el distribuidor de la zona de trabajo. En la zona central, y vinculado al garaje, se sitúa el almacenaje, sin necesidad de iluminación y ventilación directa.

En planta baja, el hall-distribuidor que da acceso a la vivienda, comunica dos zonas claramente diferenciadas por un eje imaginario dirección este-oeste; una es la zona noble y la otra es la que la complementa. La primera domina visualmente la parcela y da paso a los porches a través de estancias principales como dormitorio, salón, comedor o el office.

EXTERIORES NOCHE

En el lado opuesto de esta línea imaginaria nos encontramos con las estancias complementarias: cuartos de baño, vestidores, despensa y cocina. Las instalaciones deportivas se completan en el exterior con una pista de pádel, vinculada a la vivienda desde el tramo de acceso peatonal principal de la vivienda.


La planta alta se conecta visualmente con la planta inferior mediante una doble altura que distingue los dormitorios reservados para los invitados dotándolos de más intimidad con respecto a los 3 dormitorios pertenecientes a la vida familiar y que están vinculados a una biblioteca-despacho y estar.


La arquitectura se fusiona con el paisaje, por medio de un juego de volúmenes que nacen del propio jardín hacia la vivienda, conjugando las formas curvas de un total arquitectónico.

La solución formal ha sido resultado de una estética buscada de volúmenes rotundos que juegan con sus propias alturas y formas, del entorno circundante y de la búsqueda de riqueza espacial interior.



