
El estudio de arquitectura de A-cero os presenta, el proyecto de una vivienda unifamiliar ubicada en Almuñecar, Granada.
Para este diseño apuestan por una arquitectura de líneas rectas, contrastando con la parcela. Colores claros, que ofrecen mayor luminosidad a la vivienda.
Se encuentra situada en un entorno inigualable, en Almuñécar, con unas espléndidas vistas al Mar Mediterráneo.
CROQUIS

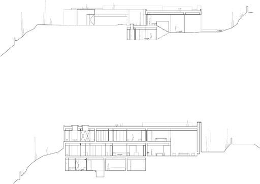
SECCIONES


ALZADOS


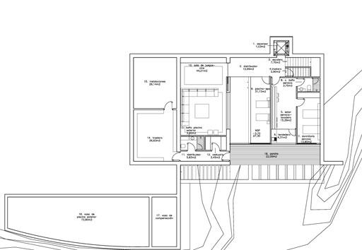
PLANTA SÓTANO

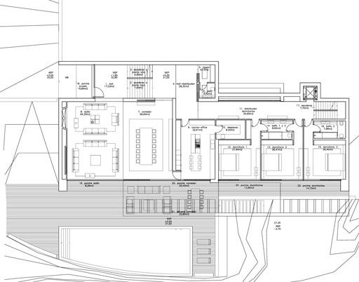
PLANTA BAJA

PLANTA PRIMERA

PLANTA CUBIERTA

EXTERIORES
En la planta sótano se encuentra la zona de servicio con un dormitorio y baño, el ascensor que llega a los diferentes niveles de la vivienda, la zona de piscina – spa, un cuarto de cine de 45m2, trastero, sala de plancha, y un vestuario con una baño que dan servicio a la piscina exterior, con un porche. Todo en una superficie total de 370m2.

En la planta primera, se organiza la zona más privada de la vivienda, donde se sitúa el dormitorio principal de 33m2, con un baño de 23m2, acompañado de un vestidor de 27m2, y dando servicio se diseña una sala de estar de 40m2. A través del distribuidor, nos dirige al dormitorio de invitados, con una sala de estar de menor tamaño, 19m2, baño y vestidor.

Grandes ventanales exteriores, apostando por el vidrio y la piedra caliza blanca, acompañados por un inmensa pérgola que ofrece sombra a los porches de la vivienda tanto de los dormitorios en planta baja como al salón y comedor. Gran trabajo por parte del estudio en lo que se refiere al paisajismo, diseñando montículos a lo largo del terreno para dar sensación de movimiento con las ondulaciones.

En la planta baja se sitúa la cocina de 30m3, el salón de 65m2 junto a un comedor de 57m2. Al igual 3 dormitorios de 30m3 con 2 baños independientes que dan servicio a estos dormitorios, y un aseo de cortesía junto al distribuidor. Todo en una superficie total de 424m2. En el exterior, un porche para los vehìculos, de 130m2.

En la imagen siguiente, se observa el exterior de la planta sótano, los ventanales que dan al interior de la piscina y spa.



