
Hoy desde el estudio de arquitectura A-cero, dirigido por Joaquín Torres & Rafael Llamazares, queremos presentaros de nuevo la vivienda que os mostramos en el programa Sálvame este miércoles.
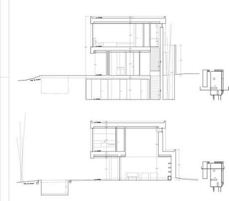
Se trata de una vivienda ubicada en el municipio madrileño de Hoyo de Manzanares, que se desarrolla en tres niveles: planta baja, alta y sótano.
SECCIONES

ALZADOS

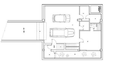
PLANTA SÓTANO
Garaje, cuarto de instalaciones de piscina, cuarto de aperos del jardín, dos cuartos de instalaciones, lavadero-tendedero; cuarto motor de la ventana, depósito de compensación de la piscina y escalera se disponen en planta sótano.

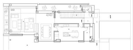
PLANTA BAJA
En la planta baja de distribuyen las estancias siguientes: porche de entrada, vestíbulo, cuarto de baño, dormitorio de invitados, dormitorio de invitados, salón-comedor, comedor de verano, cocina, aseo, escalera y porche de salón. En el exterior de la planta baja se sitúa la piscina a pie del porche de la fachada posterior, mientras amplios ventanales unen exterior e interior rentabilizando al máximo la luz natural.

PLANTA ALTA
Finalmente, en la planta alta se localiza el dormitorio principal con vestidor y cuarto de baño, un despacho y otro dormitorio con cuarto de baño.

IMÁGENES EXTERIOR
La edificación se emplaza en una parcela horizontal de 1.000m2. La volumetría de esta vivienda destaca por un diseño de líneas limpias compuesto por dos rotundas piezas superpuestas. La pureza de formas se une al blanco impoluto de la fachada convirtiendo la sencillez en la virtud de este proyecto.









INTERIORES
La claridad del esquema exterior se traslada al interior donde dominan los espacios amplios y diáfanos con un interiorismo eminentemente blanco.








