
El estudio de arquitectura A-cero, dirigido por Joaquín Torres y Rafael Llamazares, presenta este proyecto de dos viviendas “hermanas” publicadas en 2003, situadas en Galicia, que os mostramos ayer en Las Casas de Torres.
EMPLAZAMIENTO
Las viviendas se emplazan en dos parcelas paralelas de igual superficie aproximadamente 3.000m2 siendo el resultado de una división realizada porla propiedad. Suforma es rectangular y muy alargada con una ligera pendiente en el terreno que culmina suavemente en el cauce de un pequeño río, teniendo el acceso en el extremo opuesto con situación Norte. Lindan con otras propiedades a ambos lados: al sur-oeste y al Nor-este.

VIVIENDA NORESTE
ALZADOS


SECCIONES

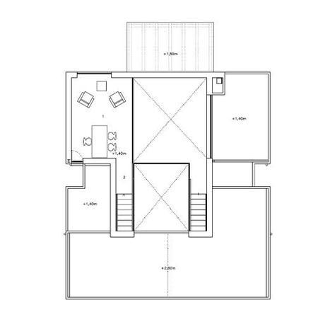
PLANTA
La vivienda nor-este habitada en su momento por una pareja con un niño, se resuelve en forma de L compuesta por 2 volúmenes, un cubo y una pastilla alargada que cae de forma escalonada absorbiendo el ligero desnivel del terreno. Exterior-interior se configuran simultaneamente buscando una distribución sencilla y ordenada. El cubo contiene el salón-comedor orientado al porche, a las vistas del valle y ala piscina. La pastilla alargada contiene, cuarto de baño, lavadero en la misma cota de entrada y en cada estancia dedicada a dormitorio comienza el desnivel de 1m.

PLANTA CUBIERTA

VIVIENDA SUDOESTE
ALZADOS


PLANTA BAJA
La vivienda sudoeste es el complemento a la anterior pero al mismo tiempo muy distinta. Su propietario quería una casa llena de luz, interiores abiertos y diafanos sin renunciar a la intimidad de las estancias que se resolvió con paneles correderos. Se plantea un solo volumen cúbico de 2 plantas que configura los espacios interiores alrededor de un patio interior que aporta luz a las estancias. La distribución comienza con el acceso de la vivienda y salón-comedor, girando entorno al patio interior: entrada, aseo de cortesía, gimnasio, lavadero, cocina independizada por un panel de vidrio en un relajante tono verde, salón, dormitorio y su respectivo cuarto de baño.

PLANTA ALTA
El altillo está destinado a un despacho abierto en doble altura hacia el salón.

CUBIERTA

VISTA EXTERIOR DE AMBAS VIVIENDAS

La teoría de dos gemelos que se necesitan pero con personalidades distintas crea una situación real y se convierte en el hilo conductor del proyecto: dos viviendas distintas que se complementan y que se convierten en un solo proyecto: un conjunto de volúmenes equilibrado y armónico.

En el exterior la piscina complementa la actuación siendo el punto de unión central de las dos viviendas con una forma de L invertida siguiendo las pautas marcadas por el proyecto. Realizada con adoquines graníticos, pizarra y madera ipé.

Las soluciones constructivas adoptadas son consecuentes con lo que se persigue, eliminando todo elemento que pueda distraer la percepción directa del espacio se ha optado por una estructura metálica en las dos viviendas.

La tonalidad pura y blanquecina de los muros resulta singular en apacible contraste con elementos férreos.


Los materiales utilizados son consecuentes con lo que se pretende conseguir. En los pavimentos se ha optado por una resina epoxídica color blanco, buscando el contraste en el mobiliario y las carpinterías de color negro.



VISTAS NOCTURNAS EXTERIOR

En el apartado de iluminación se recurre a luces indirectas ocultas en los foseados del falso techo, combinado con halógenos en las zonas que se necesita una luz más intensa, creamos así espacios cálidos y agradables.



VISTAS INTERIOR DE LAS VIVIENDAS

El mobiliario escogido con sofas tapizados en chenilla, mesas y aparadores de laca negra brillo. El salón comunica con un despacho gracias a una escalera volada, cuyos escalones de anclan en el muro por láminas de acero.


El salón comunica también con la cocina donde los electrodomésticos quedan ocultos para no interferir en el diseño minimalista de ésta.


El pasillo a tres alturas se resuelve como una solución al desnivel de la parcela, dando paso a todos los dormitorios. Esta acabado en una resina blanca en contraste a la madera de roble.


El patio contiene un jardin zen tapizado con guijarros blancos y un cerezo japonés.


El dormitorio principal da prioridad a las vistas de la parcela gracias a un paño continuo de vidrio que forma uno de los muros. El cuarto de baño también goza de esta continuidad visual.


