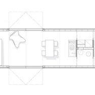
La vivienda transportable diseñada por MAPA se compone de paneles metálicos montados sobre una estructura de acero con marco simple, que se acoplan formando una envolvente continua que integra piso, muro y cubierta. Consta de cuatro áreas que cubren las necesidades funcionales de cualquier vivienda.

Enormes persianas levadizas se instalan sobre las paredes laterales para revelar las áreas sociales desde el suelo hasta el techo. Los lados menores se limitan por un plano transparente. En uno de los extremos enmarca las vistas desde el dormitorio, mientras en el otro se crea una pequeña expansión que se vincula al exterior.
El volumen se eleva del suelo para protegerlo de la humedad ascendente. Los paneles exteriores negros acentúan las transparencias laterales y crea un fuerte contraste con los tonos de la madera clara del revestimiento interior.






El techo está cubierto de vegetación con una técnica de drenaje natural que filtra hacia el sistema pluvial. La estructura fue totalmente prefabricada y puede transportares armada o ensamblarse en el lugar.
El prototipo se adapta a distintos programas y puede ser utilizado como vivienda, habitaciones de hotel, oficinas, locales de comercio o salas de exposiciones temporales.
Marcelo Gardinetti, abril de 2014©
Fotografía: ©Leonardo Finotti
TECNNE | Arquitectura y contextos



