
Hoy os quiero recomendar la vivienda Wall less House, situada en Japón, diseñada por Tezuka Architects – Takaharu+Yui Tezuka, Masahiro Ikeda, Makoto Takei. Wall Less House es una casa de diseño moderno, en la que se destaca la gran cantidad de vidrio, reemplazando los muros de ladrillo o concreto, que usualmente hay en las viviendas convencionales
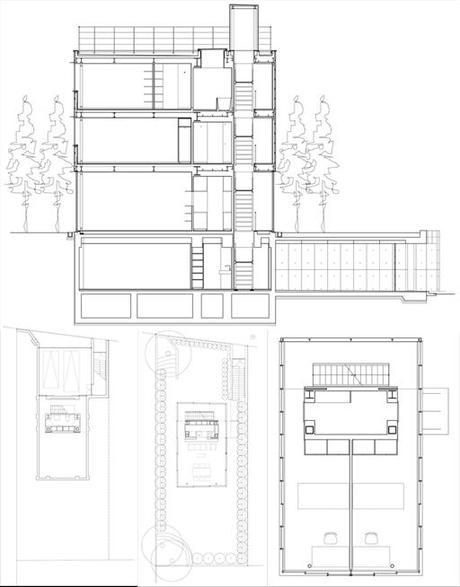
SECCIÓN Y PLANTAS

VIDEO MAQUETA
Ubicada en un barrio residencial, en el distrito de Setagaya-ku en Tokio esta vivienda ofrece una “rara” oportunidad de abrir por completo la casa hacia el paisaje y el medio ambiente, al igual que una casa de retiro ubicada en el campo.

En esta casa, el contacto visual con el medio ambiente es un punto de partida, por eso la presencia de paredes acristaladas rodeando la construcción. La casa se forma por tres niveles, y entre ellos hay columnas muy delgadas en cada piso. Ocupando sólo el 20% del sitio, la casa deja un amplio espacio a su alrededor generando un espacio abierto y diseñando una vivienda sin paredes.

El materal utilizado es el acero, diseñada con sólo un núcleo central y dos columnas delgadas, por lo que el espacio de vida al exterior se encuentra en todos sus lados.

Sobre todo el primer nivel, está en permanente contacto con la naturaleza de los jardines que rodean la casa, en este piso no existen muros, solo cristales que permiten una vista plena del exterior. El uso de paredes de vidrio, hace que el interior de la casa ofrezca una vista al jardín en 360º, y una amplia iluminación natural.

