
El estudio de arquitectura A-cero, dirigido por Joaquín Torres, os trae hoy las tipologías definitivas de sus viviendas unifamiliares A-cero Tech. Este post supone la ampliación de uno anterior, más completo e incluyendo más material gráfico, precios y superficies de cada uno de los nuevos modelos. A partir del día 1 de Febrero os ampliaremos esta información incluyendo superficies interiores de cada estancia.
MODELO LONG A
Sup: 105,22m2. PVP: 109.000€ + IVA
En esta tipología nos encontramos con un sólo módulo, por lo que tiene un transporte especial. Cuenta con una superficie de 98’84m2 construidos, en los que se distribuyen 2 dormitorios, 1 baño, cocina y salón. Su distribución interior se ha diseñado mediante espacios muy abiertos tipo loft.






MODELO LONG B
Sup: 102,06m2. PVP: 111.000€ + IVA
Al igual que el anterior, cuenta con un sólo módulo, por lo que conlleva un transporte especial con una medida de 5 metros de ancho. En cuanto a la distribución interior, cuenta con 2 dormitorios, 1 baño, cocina y salón. En la fachada exterior se enmarca la puerta de entrada a la vivienda, creando un diseño curvo y proporcionando un carácter más actual y menos cúbico.





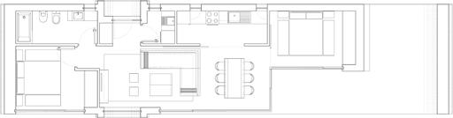
MODELO COMPAC
Sup: 128,14m2. PVP: 138.000€ + IVA
Esta vivienda cuenta con 4 módulos y cuenta con 3 dormitorios, salón – comedor, cocina, 2 baños y un porche exterior. Como se observa en la infografía, se ha dado mayor movimiento a los muros con una mayor inclinación de los mismos, transmitiendo un carácter menos lineal y más escultórico.






MODELO COMBI A1
Sup: 60,39m2. PVP: 58.000€ + IVA
Este es el ÚNICO modelo que se puede ampliar con módulos, existen 3 módulos diferentes el A1, A2 y el C (porche). Cuenta con un sólo módulo, sin transporte especial, con una medida de 3m de ancho. Un sólo dormitorio, cocina, salón y baño. Dadas las reducidas dimensiones, cuenta con la opción de añadir otro módulo en la que se aumenta el salón y se incluyen 2 dormitorios más.




MÓDULOS OPCIONALES PARA EL MODELO COMBI A1
1- COMBI A1+ PORCHE
Sup: 94,09m2. PVP: 85.000€ + IVA
PLANTA COMBI

PORCHE

COMBI A1 + PORCHE



2 – COMBI A1 + COMBI A2
Sup: 123,70m2. PVP: 115.000€ + IVA
La combinación de los dos módulos Combi. En cuanto a materiales, se apuesta por el euronit y vidrio negro, aunque se puede personalizar con los ofrecidos en A-cero Tech, como el Verzalit, acero corten etc, combinado con vidrio negro o trasparente.





3- COMBI A1 + COMBI A2 + PORCHE
Sup: 146,58m2. PVP: 142.000€ + IVA



Para más información contacta con :
91 799 79 84 ( Leticia García)
