
El estudio de arquitectura de A-cero, presenta un nuevo diseño de vivenda unifamiliar ubicado en la costa catalana, con unas inmejorables vistas al mar Mediterráneo.
La vivenda se divide en 5 niveles, sótano -2, sótano -1, planta baja, planta primera, planta segunda y planta cubierta no practicable.
CROQUIS

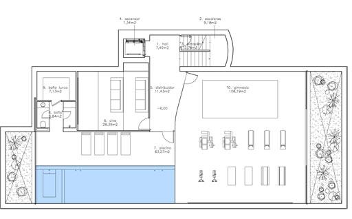
PLANO SÓTANO -2
En este nivel de 277m2, se ha ubicado un amplio gimnasio de 110m2, junto a una piscina interior de 60m2, un baño turco de 8m2, una sala de cine de 30m2 y un servicio para las diferentes estancias. Se han distribuido en esta planta los cuartos de instalaciones y el ascensor para acceder las diferentes plantas de la vivienda.

PLANO SÓTANO -1
En este nivel de 296m2, se encuentra el garaje de 157m2, para alojar 5 vehículos, junto a él se sitúa un trastero, un almacén, una bodega de 6m2, el cuarto de lavado y plancha de 15m2, y el dormitorio completo para el servicio.

PLANO PLANTA BAJA
Es en esta superficie de 246m2, es donde se ubican las zonas comunes, las estancias públicas tales como la cocina de 41m2, un salón comedor de 70m2 junto a un despacho de 22m2, con un amplio hall de entrada de 15m2.

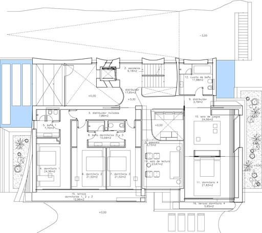
PLANO PLANTA PRIMERA
Esta planta se desarrolla en 288m2, en la que se distribuyen las estancias de descanso, a excepción del dormitorio principal que se sitúa en el último nivel de la vivienda. En esta se encuentra el dormitorio completo de invitados de 43m2, dos dormitorios secundarios de 22m2 con un baño de 11m2, el dormitorio del niño con sala de juego y baño que suman 61m2. Una pasarela comunica estas estancias que dirige hacia la sala de lectura de 24m2. Exteriormente se construyen 2 terrazas que complementan los 4 dormitorios secundarios.

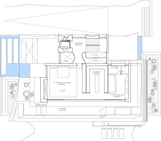
PLANO PLANTA SEGUNDA
Este nivel se ha diseñado como la parte más privada de la casa donde se sitúa el dormitorio principal de la vivienda. El distribuidor, junto con el dormitorio de 44m2, el vestidor y baño de 22m2 cada estancia, junto con la terraza, suman una superficie total de 170m2.

MAQUETA


HALL
Interiores con formas irregulares, combinando claroscuros con vidrio negro, dan sensación de espacialidad y movimiento al la entrada de la vivienda.

ASEO DE CORTESÍA

SALÓN
El interiorismo a corrido a cargo del estudio con muebles de diseño que se pueden ver en el showroom recientemente inaugurado, A-cero IN. Conjunto de mesas de centro Ovales, o sofás modulares a gusto del cliente tanto en tamaño como en color. Se han utilizado como mesas auxiliares el modelo Csec, con un exlusivo diseño presentado en colores claros. Multitud de posibilidades para hacer de tu vivienda un entorno inmejorable. Las paredes se presentan con obras de la prestigiosa artista Mercedes Rodriguez, obras reconocidas nacional e internacionalmente por la crítica del sector.


COCINA

DORMITORIO PRINCIPAL
En el dormitorio principal se ha escogido una cama modular que incluye el cabecero con las mesas de noche en una misma pieza. El cabecero puede presentarse sólo o con alguna obra artística como es en este caso.

Para completar el dormitorio principal, se ha aprovechado a máximo sus dimensiones ubicando una sala de estar acompañada de una chimenea.

BAÑO DORMITORIO PRINCIPAL
Para los baños, se ha utilizado el Corian para sus acabados, dando formas curvas e irregulares a la estancia. La combinación del corian con el vidrio negro, acompañado de la luz indirecta hace de los leds este espacio una zona de relajo y bienestar.

DORMITORIO DE INVITADOS

BAÑO DE INVITADOS




VISTA FRONTAL DE LA FACHADA
Para las fachadas se han utilizado materiales como el aluminio blanco combinado con el vidrio negro.


VISTA TRASERA DE LA FACHADA

DESPACHO

