
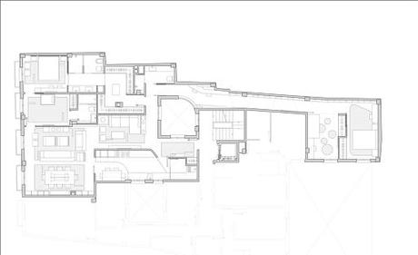
Hoy el estudio de arquitectura A-cero, liderado por Joaquín Torres, presenta un nuevo proyecto de interiorismo para una vivienda unifamiliar situada en Córdoba. El proyecto supone la unión de dos apartamentos, inicialmente separados y del mismo propietario, en un sólo espacio en el que se reformulan algunas de sus estancias principales. Os dejamos a continuación el plano del estado actual del inmueble y la planta de distribución de la vivienda tras la unión de ambos espacios en uno solo.
ESTADO ACTUAL

PLANTA DISTRIBUCIÓN

SECCIONES

El proyecto plantea la reforma de las siguientes estancias: comedor, despacho, salón, cocina, cuarto de invitados y cuarto infantil. La modernización de los distintos ámbitos es una de las constantes dentro de este nuevo planteamiento. Sin apenas reformas estructurales, se dinamizan los espacios con la combinación de colores, blancos y negros principalmente, característicos del estudio que otorgan a la vivienda interesantes contrastes, reforzados por el cambio de mobiliario, lo que otorga gran fuerza a este interiorismo.



ESTANCIAS
Los espacios se abren y se busca en todo momento hacerlos diáfanos y luminosos. El salón, de grandes dimensiones, incluye una zona de comedor y otra, anexa, que hace las veces de sala de TV. Obras de la artista Mercedes Rodríguez ponen la guinda a cada estancia, en gran armonía cromática con las líneas maestras del resto del proyecto.
COMEDOR

DESPACHO

El despacho se plantea en el corredor que une los dos apartamentos actuales en el apartamento único resultante. Se aprovecha así al máximo el espacio disponible .
SALÓN


COCINA
La cocina deja de lado la ortogonalidad que veníamos observando en otras estancias e introduce leves elementos en curva, más orgánicos que, junto a los ya mencionados contrastes de color, convierte en una pieza más de diseño una estancia eminentemente funcional.

El proyecto también contempla el interiorismo del cuarto de invitados, de un vestidor y del dormitorio infantil.
DORMITORIO DE INVITADOS

