
A-cero ha realizado la reforma del emblemático Hotel Suecia, transformando el mismo, en un edificio de lujosas viviendas unifamiliares. El Hotel Suecia, situado en la C/ Marqués de Casa Riera 4, Madrid, fue inagurado por el príncipe Bertil de Suecia en 1956. Cuenta con un grandioso emplazamiento, situado muy cerca del Museo Thyssen Bornemisza, el Teatro Alcázar, la Fuente de Neptuno, la Fuente La Cibeles, El Museo del Prado y Chueca. Se parte de un edificio ya construido, la propiedad tiene la intención de remodelar su interior manteniendo la fachada existente tal y como indican las protecciones normativas. Se pretende modificar su uso y distribución para albergar 36 viviendas, oficinas en planta primera, un local comercial en planta baja y garaje motorizado.
SITUACIÓN

CROQUIS PLANTAS



SECCIONES

ALZADOS

PLANTA SÓTANO -3,-2,-1
Se plantean tres sótanos de garaje motorizado con acceso desde la planta baja. En esta también se encuentra el acceso a las viviendas, cuarto de instalaciones y un local comercial.
En el sótano -3 se encuentra : Aparcamiento 604,56m2 . En el sótano -2 se distribuye: aparcamiento 604,56m2 . En el sótano -1: aparcamiento 604,56m2.

PLANTA BAJA
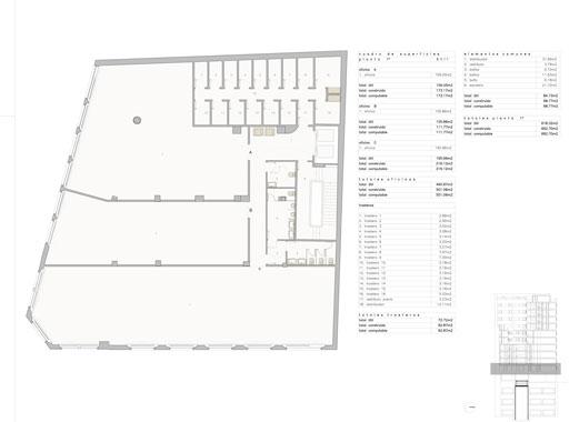
La planta baja se ha destinado a uso comercial, y la planta primera a oficinas.
Local: 256,62m2
Aparcamiento:
1. acceso 100,39m2
2. vestíbulo previo 3,03m2
3. escaleras de mantenimiento 8,19m2
4. acceso portal 22,31m2
5. cuarto disponible 6,40m2
Elementos comunes: 180m2

PLANTA PRIMERA
En planta primera se sitúan 2 oficinas que suma un total de 300m2 y los trasteros correspondientes.

PLANTAS 2, 3 Y 4 APARTAMENTOS DE HAST 70M2
En las plantas siguientes desde la 2ª a la 10ª se proponen 36 viviendas que se van adaptando a la planta existente en el proyecto original con pequeñas modificaciones. Las comunicaciones entre las viviendas se realizarán a través de las zonas comunes así como el acceso a cada planta a partir de las escaleras y dos ascensores. Existente también una planta ático sobre la cubierta. La solución formal ha sido resultado de una estética buscada, del entorno circundante y de la aplicación de las normas urbanísticas que regulan la edificación.

PLANTAS 2, 3 Y 4 APARTAMENTOS HASTA 150M2

PLANTA 5 APARTAMENTOS APARTAMENTOS HASTA 60M2
En la 5ª y 6ª planta, se ha mantenido el patio exterior, eliminándolo del resto de los niveles.

PLANTA 5 APARTAMENTOS HASTA 130M2

PLANTA 6 APARTAMENTOS HASTA 60M2

PLANTA 6 APARTAMENTOS HASTA 130M2

PLANTA 7 APARTAMENTOS HASTA 105M2

PLANTA 7 APARTAMENTOS HASTA 185M2

PLANTAS 8,9 Y 10 APARTAMENTOS HASTA 105M2

PLANTAS 8,9 Y 10 APARTAMENTOS HASTA 155M2

EXTERIOR

Exteriormente se pretende mantener la estética, por lo que la reforma se ha realizado en los interiores, manteniendo originalmente solo la escalera y los ascensores. La solución adoptada se limita al interior del edificio, modificando su distribución a partir de una arquitectura más actual que dinamice los espacios sin modificar los vanos de fachada. La fachada, como antes se ha citado, se ha mantenido la materialidad y los huecos, por lo que sólo se ha ampliado su tamaño para mejorar interiormente la iluminación y ventilación de las viviendas.
PLANTA ÁTICO ZONA CHILL OUT



TERRAZA

INTERIORES
HALL

SALÓN


SUITE APARTAMENTOS PLANTA 5

Distribución interior muy orgánica siguiendo las líneas de diseño de A-cero, personalizadas, dando mucha importancia a la luz, de ahi las ventanas interiormente abocinadas.

SALON APARTAMENTOS PLANTAS 2-3

SALON APARTAMENTOS PLANTA 7

SALÓN APARTAMENTOS PLANTA 8

PATIO INTERIOR

