
Hoy el estudio de arquitectura A-cero, dirigido por Joaquín Torres y Rafael Llamazares, presenta un proyecto de reforma interior en la nave industrial de A-cero TECH, localizada en Castellón.
CROQUIS

ALZADOS


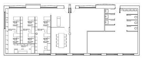
PLANTA TIPO
En la instalación localizamos dos zonas: Una en la que encontramos un área de servicios y un área de descanso, y otra en la que se ubican la recepción, la sala de juntas, y un espacio amplio con varias mesas de oficina y un despacho.

IMÁGENES ORIGINALES
Como observamos en la imagen nos encontramos con una edificación cuadrada, recta, simple en sus líneas, con un acabado en color gris y con ventanas protegidas por rejas.


PROPUESTAS PREVIAS
Se presenta una integración de fachada en la que se mantiene la estructura original de la edificación añadiendo paneles de cemento reforzado de color blanco. Las ventanas son de vidrio negro.

La barandilla se presenta de color amarillo para acompañar a las vigas del techo de la nave.

El interior está acabado en color blanco, tanto en paredes como en suelo. La superficie de la mesa de recepción se presenta en color negro con el objetivo de romper con la armonía del blanco. Se separa la sala de juntas mediante un panel de vidrio blanco.

PROPUESTA FINAL
En esta propuesta se utilizan los mismos paneles de cemento, pero en este caso alternando el blanco y el negro. Las ventanas seguirán siendo de vidrio negro y, la barandilla, irá en color negro también, con el fin de acompañar en esta ocasión al color de la fachada.

En ambas propuestas habrá tres accesos a la instalación, al contrario de las cuatro que tenía la original.
La palabra TECH estará en ambas propuestas en color rojo.

En este caso se alternan acabados en blanco y en gris. La pared tras la mesa de recepción será la parte acabada en gris, con la palabra TECH en rojo sobre ella, igual que en la fachada. El panel de vidrio que separa la sala de juntas en esta propuesta será de vidrio transparente, dejando al descubierto lo que sucede en su interior.

