
Os presentamos el trabajo realizado por A-cero para un complejo de apartamentos turísticos situado a las afueras de Madrid en la zona sur de la capital.



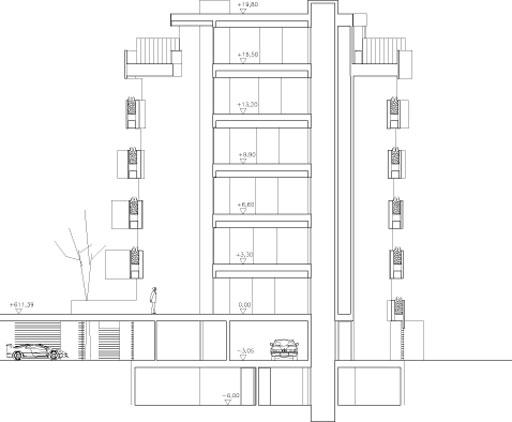
En un solar de casi 200.000m2 se sitúa este proyecto formado por una serie de edificios (tres habitables y uno destinado parking) con locales comerciales y numerosas zonas comunes.



Cada edificación se extiende a lo largo del terreno formando un dinámico juego de curvas. Como un conjunto de suaves ondas, cada bloque de apartamentos se eleva entre los viales peatonales del complejo.



Para el revestimiento de las fachadas se proponen piezas prefabricadas de hormigón que se adapten fácilmente a las curvaturas de los edificios.

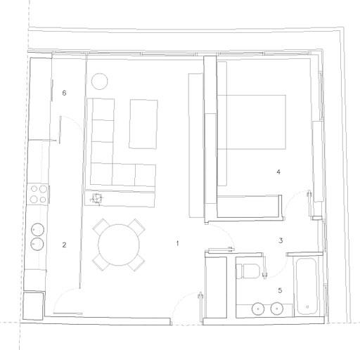
En total se localizan más de cien apartamentos con superficies inferiores a los 100m2. Se desarrollan varias tipologías con uno o dos dormitorios.
PLANTA TIPO 1

PLANTA TIPO 2

