La casa ocupa un área de asentamiento tradicional flanqueado por dos paredes adyacentes a izquierda y derecha y una pared común en la parte inferior, que abre a una avenida. Un bello paseo se extiende frente a un parque verde. Por eso, en primer lugar, se aseguró por el sistema general de la casa la vista del parque, y se ha creado una terraza jardín en la azotea de forma que permite, precisamente, degustar los beneficios del cielo, luz, sol y la sombra para que ser disfrutado en la parte delantera de la casa.

Los pilotes de hormigón armado permiten ganar espacios debajo de la casa y por lo tanto reconocer una distribución favorable entre el consultorio del doctor y su casa. Naturalmente, el hormigón armado permite un acristalamiento muy completo, que ha sido protegido por un brise soleil diseñado de acuerdo con el ángulo y la dirección del sol en esta latitud.
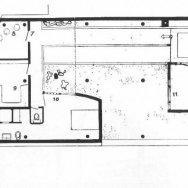
Las plantas y sección ofrecen la posibilidad de un paseo arquitectónico regular. Se levanta a través de la construcción de una manera interesante y divertida que abre diversas perspectivas. La planificación libre adoptada en todas las plantas, y muy especialmente en el dormitorio, da lugar a algunas soluciones interesantes. La construcción está en marcha en La Plata.
Le Corbusier Obras Completas, tomo 5 página 46. ©FLC-ADAGP
Fotografías: ©Marcelo Gardinetti
Artículo relacionado: Casa Curutchet, relato fotográfico
TECNNE | Arquitectura + contextos









Escrito en: Casa Curutchet
Autor: Marcelo Gardinetti
Fotografía: Marcelo Gardinetti
Cite: Casa Curutchet, texto de las Obras Completas, Tecnne
Enlace corto: http://tecnne.com/?p=16935
Tags: 1949, Casa Curutchet, Casa Curutchet en las Obras Completas, curutchet house, Fondation Le Corbusier, La Maison du Docteur Currutchet à La Plata, Le Corbusier, maison curutchet
Los artículos de TECNNE se encuentran bajo la licencia Creative Comons | The articles of TECNNE are found under license Creative Comons
Deja un comentario
Clic para cancelar respuesta.Nombre (requerido)
Correo electrónico (no será publicado) (requerido)
Web
