
En el municipio madrileño Hoyo de Manzanares, situado en la vertiente sur de la sierra de Guadarrama, se halla la casa que os presentamos hoy. Una construcción de 445,80m2 que sin llegar a ser una de las viviendas más grandes de A-cero, dispone de unas dimensiones muy cómodas para vivir el día a día.


La edificación se emplaza en una parcela horizontal de 1.000m2. La volumetría de esta vivienda destaca por un diseño de líneas limpias basado en dos rotundas piezas superpuestas. La pureza de formas se une al blanco impoluto de la fachada convirtiendo la sencillez en la virtud de este proyecto.


A requerimiento de la propiedad la vivienda se organiza en tres alturas: planta baja, alta y sótano.
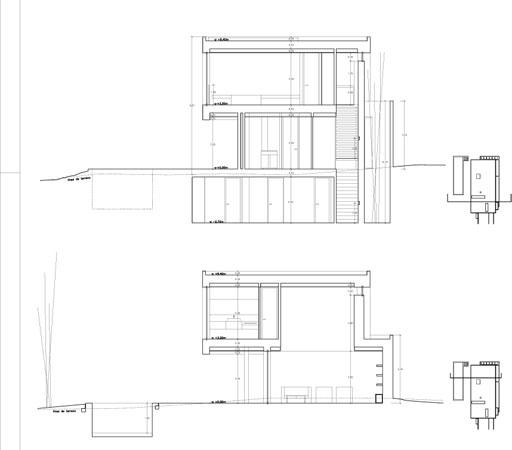
ALZADOS

SECCIONES

El garaje, lavadero-tendedero y los cuartos de instalaciones se disponen en la planta sótano.
SÓTANO


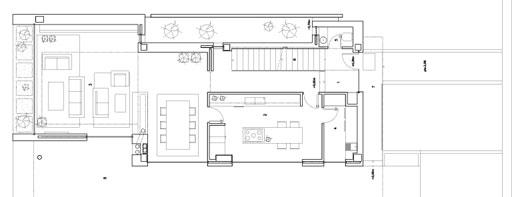
En la planta baja se distribuyen las estancias siguientes: porche de entrada, vestíbulo, dormitorio de invitados con cuarto de baño, salón-comedor, comedor de verano, cocina, aseo, escalera y porche de salón.
PLANTA BAJA




Finalmente, en la planta alta se localiza el dormitorio principal con vestidor y cuarto de baño propio, un despacho y otro dormitorio con cuarto de baño.
PLANTA ALTA



La claridad del esquema exterior se traslada al interior donde dominan los espacios amplios y diáfanos con un interiorismo eminentemente blanco.

En el exterior destaca una amplia piscina a pie del porche de la fachada posterior, mientras amplios ventanales unen exterior e interior rentabilizando al máximo la luz natural.

