
Os presentamos una de las últimas viviendas unifamiliares de A-cero cuyo proceso de construcción aún no ha finalizado.
Una edificación de 4.469,56m2 situada en una urbanización rodeada de naturaleza en un municipio de las afueras de Madrid.

Para este trabajo se desarrollan dos propuestas. El primer planteamiento parte de un diseño más compacto que el diseño posterior. Esta primera idea se distingue por la combinación de varios volúmenes superpuestos revestidos en hormigón blanco y negro.



Posteriormente se proyectó una residencia de muros más dinámicos y ligeros delimitados por franjas de aluminio negro.





Esta idea fue la decisiva que se está construyendo en la actualidad.
ALZADO

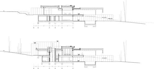
SECCIONES

La vivienda se desarrolla en dos niveles, sótano y planta baja, adaptados a la pendiente del terreno donde se asienta la construcción.


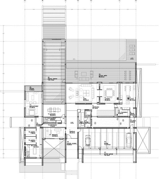
Las diferentes zonas de día de la residencia se organizan en la planta baja. Este nivel incluye las siguientes estancias: vestíbulo, ropero, un aseo de cortesía, salón, comedor, cocina, lavadero, tendedero, gimnasio, vestuario, piscina, dos dormitorios con vestidor y cuarto de baño, tres terrazas dos de las cuales disponen de pérgola y garaje.
PLANTA BAJA

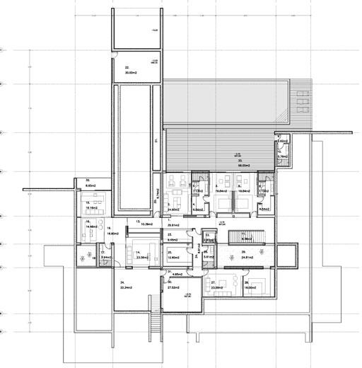
En el sótano se sitúan los cuartos de instalaciones.
SÓTANO

Un proyecto que pretende dar respuesta a las necesidades del promotor, en cuanto a estancias y superficies, sin desmarcarse del lenguaje arquitectónico de A-cero.
