


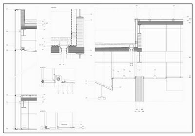
"El espacio cultural se proyecta como un contendedor con una estructura formada por dos cerchas metálicas que crean tres espacios diferenciados: uno central de forma trapezoidal entre las cerchas, y dos crujías laterales de diferentes dimensiones entre estas cerchas y la piel edificio. La envolvente, de gran transparencia, permite la total comunicación entre el interior y el exterior. Para conseguir esta conexión, se ha dispuesto un muro de cortina WICSKY SG de Wicona con vidrios de diferentes tonalidades y estriados de forma que producen un efecto orgánico y de agua. La fachada se ha construido a base de montantes y travesaños de 50 mm de ancho. El vidrio encolado se ha fijado mediante sellado con silicona estructural. El dibujo de las estrías en la fachada corresponde a la creación de las curvas generadas por la aplicación matemática de las notas musicales, su valor y el tiempo de la pieza musical “Bridge over troubled water” de Simon & Garfunkel.
Los movimientos de la cubierta generados por la carga de nieve y la evacuación del agua han sido dos problemáticas que se han tenido que valorar especialmente en el momento de diseñar el sistema de anclaje a la fachada. Para ello, se ha previsto un guarda-aguas con una pendiente mínima del 10% y un sistema de anclaje fijo en aluminio regulable. De esta manera, los anclajes son fijos en la parte superior de cada montante, y se disponen en libre dilatación en la parte inferior, para permitir movimientos por variaciones térmicas o de peso. "




Ficha Técnica:
Obra: Centre d’Interpretació de l’Aigua i del Madriu (CIAM).
Cliente: Comú d’Escaldes-Engordany (Principado de Andorra)
Constructora: Pidasa Serveis.
Arquitecto: Joan Coll.
Industrial: Serralleria Cortals.
Fachada de aluminio: Wicona. Soluciones utilizadas: Muro cortina WICSKY SG.
Fotografía: Comú d’Escaldes-Engordany / Wenzel.
vía: Ana varea. Bosch & Serret, S.A.
