DUCSA convoca a artistas a participar en el Concurso de pintura 2012, denominado TU MIRADA ARTÍSTICA, mediante el cual se convoca a los participantes a la presentación de un proyecto para la realización de un Mural en la pared ubicada en Solano Antuña esq. Rambla República del Perú.Participantes.
Sólo podrán participar artistas mayores de 18 años de edad. No podrán participar aquellos artistas que tengan cualquier forma de vínculo directo con los miembros del jurado.
Temática.
La obra debe estar enfocada en cualquiera de los siguientes temas:
a: "Pocitos, nuestro barrio"
b: "Oxígeno"
c: "Vista al mar"
d: "Aire y vida"
e: "El cielo y el mar".
f: "Respirar naturaleza"
g: "Un mundo natural"
h: "Una ciudad hacia el mar".
i: "La rambla 2021”
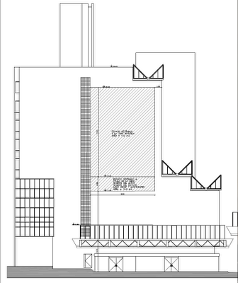
Dimensión y ubicación del mural.
El espacio destinado para la obra se ubica en Solano Antuña esq. Rambla República del Perú. La obra expuesta podrá tener una dimensión máxima de 9,40 m de base x 13 m de altura Por lo cual la obra propuesta deberá contemplar dichas proporcionalidades. La obra a entregar no debe superar la escala 1/20. Se adjunta plano que ilustra su ubicación y entorno
Premios :
a ) Primer Premio U$S 2000.-
b ) Segundo Premio U$S 1.000.-
c ) Tercer Premio U$S 500.-
d) Tres menciones Honrosas del jurado.
Plazos:
Presentación de proyectos: hasta las 17 hs del día 20 de noviembre de 2012 en DUCSA, sita en Avda. Libertador y Paysandú s/n, piso 8.
Comunicación del resultado de selección: 10 días hábiles a partir del fallo
BASES www.ducsa.com.uy/concursoartistas/bases.aspx
http://www.conectaarte.blogspot.com/
