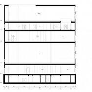
La Zollverein Design School se sitúa entre un suburbio y una antigua industria de la minería del carbón. El edificio es un cubo de 35 metros, el cual a la escala de los grandes edificios industriales, se pone en contraste de la fina textura suburbana. Su intensa presencia delata los antiguos terrenos industriales.

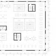
Según los estándares tradicionales, el volumen del edificio podría ser percibido como muy grande para su programa, un aproximamiento que no solo tiene impacto urbano, sino que también es una respuesta al programa del edificio. Sentimos que las grandes alturas de cielo eran apropiadas para espacios educacionales, particularmente para el nivel de los talleres que ocupa una losa completa de la estructura.






Este nivel de producción sin divisiones es un espacio tipo loft totalmente flexible, cerrado tan solo por los muros estructurales externos. Estos muros, perforados por numerosas aberturas, filtran la luz y las vistas del paisaje industrial inmediato, suavizando la transición entre exterior e interior.
SANAA©
Fotografías: Portada ©Thomas Mayer Galería 1 ©Iwan Baan – Galera 2 ©Thomas Mayer
Artículo relacionado: Ondulaciones laminares
TECNNE | Arquitectura + contextos



Arquitectos: Kazuyo Sejima + Ryue Nishizawa / SANAA – http://sanaa.co.jp/
Arquitectos Asociados: Böll & Krabel
Arquitecto projecto: Nicole Berganski
Cliente: Zollverein School – http://www.zollverein-school.de/
Ubicación: Essen, Alemania
Inicio Construcción: Marzo 2005
Término Construcción: Julio 2006
Superficie: 5.000m²
Masterplan: Rem Koolhaas OMA – http://www.oma.nl/
Paisajismo: Agence Ter









