Revista Arquitectura

Escuela primaria Vilhelmsro

Por Magava
Es estudio de Copenague Big Architects ha realizado este proyecto que yo personalmente aplicaria a todas las escuelas.  Yo desde luego la veo muy adecuada para realizar la primaria. ¿ Os imaginais vuestra infancia en una escuela así ?
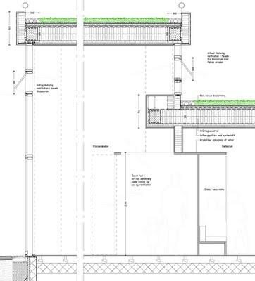
Escuela primaria Vilhelmsro
Escuela primaria Vilhelmsro
Escuela primaria Vilhelmsro
Escuela primaria Vilhelmsro
Escuela primaria Vilhelmsro
Escuela primaria Vilhelmsro
Escuela primaria Vilhelmsro
Escuela primaria Vilhelmsro
Escuela primaria Vilhelmsro
Escuela primaria Vilhelmsro
Escuela primaria Vilhelmsro
Escuela primaria VilhelmsroVía: Designboom
Os recuerdo que seguimos con el sorteo del blog:

40 euros en una tarjeta regalo de Zara Home y un libro de Mies Van der Rohe

Escuela primaria Vilhelmsro

Volver a la Portada de Logo Paperblog